タマタウン米原
区画プラン・区画図
設備・構造
イベント情報他
| ★現在建築中のため店舗にて説明会開催中★(要事前予約) お問合せは米子店まで! 【連絡先】0120-923-960 【開催日】定休日以外 【ご案内時間】9:00~20:00■その他、各種ご相談もお気軽にご相談ください。 安心できるファイナンシャルプランナーによる資金計画や住宅ローンのご相談、税金関係もお任せください。資金計画に関しては1番重要な部分になる為、お客様の不安を残さないよう専属担当だけではなく、資金計画担当も一緒にお話いたします。 |
物件概要・取扱い店舗
| 所在地 | 鳥取県米子市米原780-3他 |
|---|---|
| 交通 | JR境線「三本松口」駅 徒歩約14分 |
| 販売戸数 | 2戸 |
| 総戸数 | 2戸 |
| 価格 | 3,580万円(税込)・3,730万円(税込) |
| 最多価格帯 | - |
| 私道負担・道路 | 無 |
| 諸費用 | 登記費用、火災保険費用、融資手数料など |
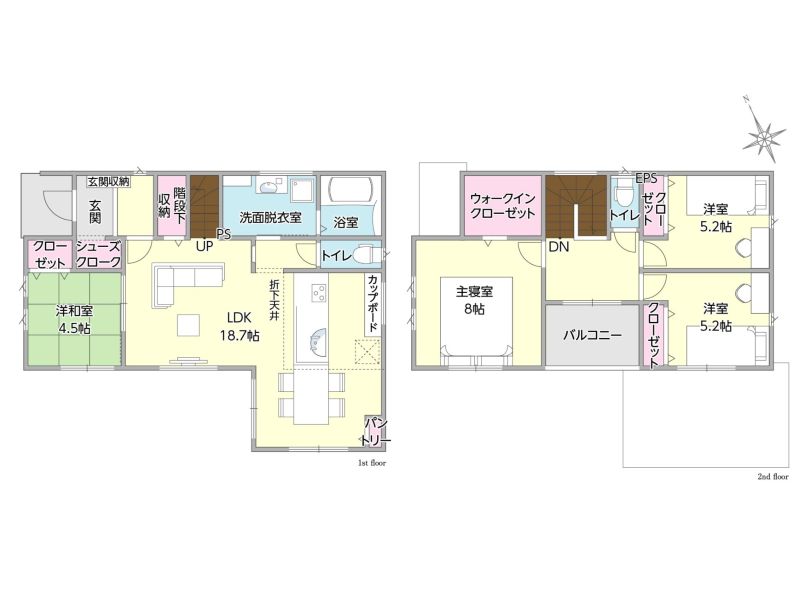
| 間取り | 4LDK |
| 延床面積 | 107.65㎡(32.56坪)・108.05㎡(32.68坪) |
| 土地面積 | 187.43㎡(56.69坪)・221.46㎡(66.99坪) |
| 建ぺい率・容積率 | 60%・200% |
| 完成時期 | 2026年7月予定 |
| 入居時期 | 要相談 |
| 土地の権利形態 | 所有権 |
| 構造・工法 | 木造2階建て |
| 用途地域 | 第一種住居地域 |
| 地目 | 宅地 |
| その他制限事項 | - |
| その他概要 | 水道:公営水道 電力:中国電力 ガス:- 建築確認番号:第HP06-4139020号 |
| お問合せ |
米子支店 0120-923-960 [通話料無料]営業時間9:00~20:00(定休日:毎週水曜日)※お問合せの際は「ホームページを見て」とお伝えいただくとスムーズです。 〒683-0801 鳥取県米子市新開6丁目4-39 [宅建業免許番号]国土交通大臣(5)第6857号 (公社)鳥取県宅地建物取引業協会会員 中国地区不動産公正取引協議会加盟 |
| 売り主・事業主 |
タマホーム株式会社 [建設業許可番号]国土交通大臣許可(特-5)第19013号(般-5)第19013号 [宅建業免許番号]国土交通大臣(5)第6857号 |
●情報更新日:2026.04.07
●次回更新予定日:2026.05.23
鳥取県の物件一覧
※価格は物件の代金総額を表示しており、消費税が課金される場合は税込み価格です。※外観画像・内観画像・CGパース・間取り図に描かれている車両・家具・調度品等は販売価格には含まれません。※完成予想図はいずれも外構・植栽・外観等実際のものと多少異なる場合があります。※販売戸数が複数の物件につきましては、物件の特徴がすべての住戸に該当しない場合があります。※所要時間は、徒歩:道路距離80m/1分間、自転車:道路距離250m/1分間、自動車:道路距離666m/1分間を要するものとして算出した数値となります。























