タマタウン金沢近岡町
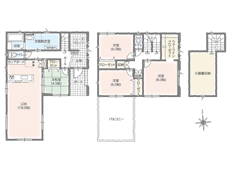
区画プラン・区画図
周辺情報
-
交通北鉄バス「近岡」まで徒歩約4分(約250m)
※地図上に表示される物件の位置は付近住所に所在することを表すものであり、実際の物件所在地とは異なる場合があります。
設備・構造

見せ梁のあるLDK

キッチンからリビングまでを見渡せる広い一体空間

壁と天井にグラスウール、床にポリスチレンフォームの断熱材を施工。地域に対応した断熱材を使用し、高い断熱性と気密性を確保。外気温の影響を受けにくいので冬は「暖かく」、夏は「涼しい」家を実現します。

ベタ基礎を標準採用。コンクリートは、高耐久性と強度を確保、鉄筋は徹底管理した工場で溶接・加工されたユニット鉄筋を採用。建物をしっかり支え地震の揺れにも耐える強固な家づくりを実現しています。

シロアリを寄せ付けにくい、耐久性に優れたヒノキ土台を採用。また、柱には高品質の国産集成材を採用。集成材は安定した強度を持ち、耐震性、耐久性に高い強い家を生み出します

外壁材と構造躯体の間に外気が流れる通気層をつくることで、湿気を外部に放出。結露や湿気を少なくすることで、構造体や断熱材を腐食やカビから守り、建物の耐久性を向上させます(画像はイメージ)。
イベント情報他
| 現地案内会開催中(※事前に必ずお問い合わせください) 【開催時間】毎週土曜・日曜 【ご案内時間】10:00~18:00 ■ご案内方法:弊社までご来店いただき、ご案内させていただきます。 ■ご案内ご予約手順:事前のご予約が必要です。ご予約時に、物件探しの条件をお教えていただければ、お問い合わせいただいた物件資料も含めて、条件に合う物件資料をお持ちいたします。 |
物件概要・取扱い店舗
| 所在地 | 石川県金沢市近岡町445番1・445番10 |
|---|---|
| 交通 | 北鉄バス「近岡」 徒歩約3分 |
| 販売戸数 | 1戸 |
| 総戸数 | 2戸 |
| 価格 | 4,080万円(税込) |
| 最多価格帯 | - |
| 私道負担・道路 | 無・西5.5m幅 |
| 諸費用 | - |
| 間取り | 4SLDK |
| 延床面積 | 117.06㎡(35.41坪) |
| 土地面積 | 138.15㎡(41.79坪) |
| 建ぺい率・容積率 | 60%・200% |
| 完成時期 | 2025年7月下旬予定 |
| 入居時期 | 要相談 |
| 土地の権利形態 | 所有権 |
| 構造・工法 | 木造軸組2階建て |
| 用途地域 | 準工業地域 |
| 地目 | 宅地 |
| その他制限事項 | - |
| その他概要 | 水道:公営上下水道、電力:北陸電力、ガス:オール電化の為、なし、建築確認番号:第IKJC24-1763号 |
| お問合せ |
野々市支店 0120-925-424 [通話料無料]営業時間9:00~20:00(定休日:毎週水曜日)※お問合せの際は「ホームページを見て」とお伝えいただくとスムーズです。 〒921-8823 石川県野々市市粟田6丁目315-2 【宅建業免許番号】国土交通大臣(4)第6857号(公社)石川県宅地建物取引業協会会員 |
| 売り主・事業主 |
タマホーム株式会社 [建設業許可番号]国土交通大臣許可(特-5)第19013号(般-5)第19013号 [宅建業免許番号]国土交通大臣(5)第6857号 |
●情報更新日:2025.12.09
●次回更新予定日:2025.01.16
※価格は物件の代金総額を表示しており、消費税が課金される場合は税込み価格です。※外観画像・内観画像・CGパース・間取り図に描かれている車両・家具・調度品等は販売価格には含まれません。※完成予想図はいずれも外構・植栽・外観等実際のものと多少異なる場合があります。※販売戸数が複数の物件につきましては、物件の特徴がすべての住戸に該当しない場合があります。※所要時間は、徒歩:道路距離80m/1分間、自転車:道路距離250m/1分間、自動車:道路距離666m/1分間を要するものとして算出した数値となります。




























