タマタウン長岡前田
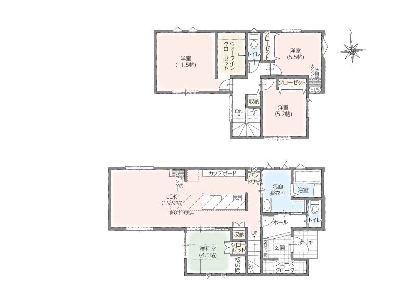
区画プラン・区画図
周辺情報
※地図上に表示される物件の位置は付近住所に所在することを表すものであり、実際の物件所在地とは異なる場合があります。
設備・構造

【地盤調査】スウェーデン式サウンディング試験機による地盤調査を実施。強い家づくりの基本は、建物をしっかりと支える地盤です。当分譲地は、着工前に地盤を調査しています。

【ベタ基礎】ベタ基礎を標準採用。コンクリートは、高耐久性と強度を確保、鉄筋は徹底管理した工場で溶接・加工されたユニット鉄筋を採用。建物をしっかり支え地震の揺れにも耐える強固な家づくりを実現しています。

【土台、集成材】耐久性に優れた土台を採用。また、柱には高品質の集成材を採用。集成材は安定した強度を持ち、耐震性、耐久性に高い強い家を生み出します。

【通気工法】外壁材と構造躯体の間に外気が流れる通気層をつくることで、湿気を外部に放出。壁内の通気層は屋根裏まで通っており、構造体や断熱材を腐食やカビから守り、建物の耐久性を向上させます。

【剛床工法】1階と2階の床には、剛床工法を採用。構造用合板を土台や梁に直接留めつけて、床全体を一体化。地震の横揺れにも効果を発揮します。
イベント情報他
| 現地案内開催中 【開催日時】毎週土曜・日曜 【ご案内時間】10:00~17:00 ※現地にスタッフは常駐しておりません。事前に必ずお問合せください。 |
物件概要・取扱い店舗
| 所在地 | 新潟県長岡市前田3-1429-2 |
|---|---|
| 交通 | JR信越本線、上越線、上越新幹線「長岡」徒歩約20分 |
| 販売戸数 | 1戸 |
| 総戸数 | 2戸 |
| 価格 | 3,900万円(税込) |
| 最多価格帯 | - |
| 私道負担・道路 | 無、東6m幅 |
| 諸費用 | ‐ |
| 間取り | 4LDK |
| 延床面積 | 113.44㎡(34.31坪) |
| 土地面積 | 173.85㎡(52.58坪) |
| 建ぺい率・容積率 | 60%・200% |
| 完成時期 | 2026年6月 |
| 入居時期 | 相談 |
| 土地の権利形態 | 所有権 |
| 構造・工法 | 木造2階建て |
| 用途地域 | 第1種中高層住居専用地域 |
| 地目 | 田 |
| その他制限事項 | ‐ |
| その他概要 | 水道:公営上下水 電気:東北電力 ガス:北陸ガス 建築確認番号:NK第25長01430号 |
| お問合せ |
長岡営業所 0120-923-920 [通話料無料]営業時間9:00~20:00 (定休日:水曜日)※お問合せの際は「ホームページを見て」とお伝えいただくとスムーズです。 [宅建業免許番号]国土交通大臣(5)第6857号(公社)新潟県宅地建物取引業協会会員(公社)首都圏不動産公正取引協議会加盟 |
| 売り主・事業主 |
タマホーム株式会社 [建設業許可番号]国土交通大臣許可(特-5)第19013号(般-5)第19013号 [宅建業免許番号]国土交通大臣(5)第6857号 |
●情報更新日:2026.04.09
●次回更新予定日:2026.05.23
※価格は物件の代金総額を表示しており、消費税が課金される場合は税込み価格です。※外観画像・内観画像・CGパース・間取り図に描かれている車両・家具・調度品等は販売価格には含まれません。※完成予想図はいずれも外構・植栽・外観等実際のものと多少異なる場合があります。※販売戸数が複数の物件につきましては、物件の特徴がすべての住戸に該当しない場合があります。※所要時間は、徒歩:道路距離80m/1分間、自転車:道路距離250m/1分間、自動車:道路距離666m/1分間を要するものとして算出した数値となります。


















-1.jpg)









