タマタウン東大沼
区画プラン・区画図

【外観完成イメージ】全5棟!洗練された外観イメージ。家づくりのノウハウを結集したスタイリッシュな住まいです!

【全体区画図】全区画60坪超のゆとりある敷地に、2台駐車可能なスペースを確保。

【1号棟(2階建て)】敷地面積 203.38㎡(61.52坪)/延床面積 103.50㎡(31.30坪)/間取り:3LDK

【2号棟(平屋建て)】敷地面積 291.98㎡(88.32坪)/延床面積 86.95㎡(26.30坪)/間取り:3LDK

【3号棟(平屋建て)】敷地面積 219.61㎡(66.43坪)/延床面積 88.60㎡(26.80坪)/間取り:3LDK

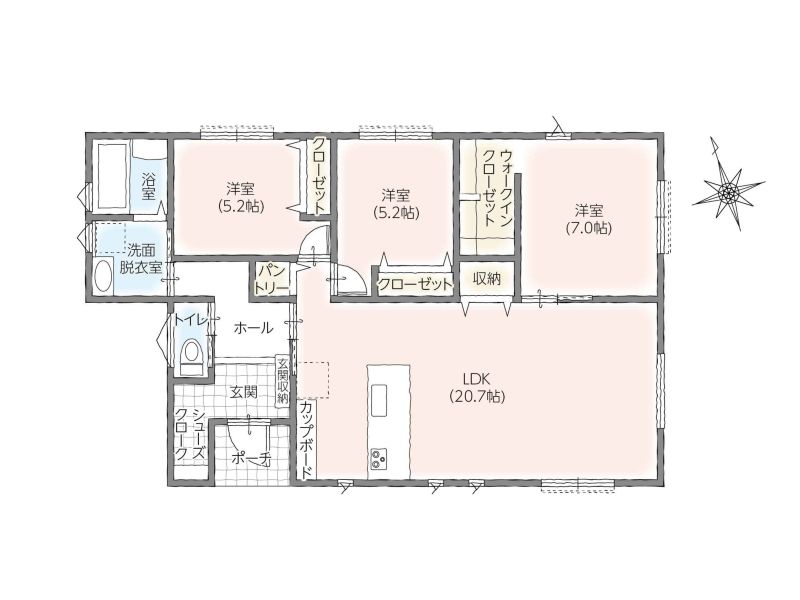
【4号棟(平屋建て)】敷地面積 219.05㎡(66.26坪)/延床面積 91.09㎡(27.55坪)/間取り:3LDK
周辺情報
※地図上に表示される物件の位置は付近住所に所在することを表すものであり、実際の物件所在地とは異なる場合があります。
設備・構造

長期優良住宅に求められる4つの性能基準について、当分譲戸建商品は、標準仕様において、長期優良住宅の認定条件全4項目で最高等級を確保しています(住宅性能表示制度での等級を適用)。

壁と天井にグラスウール、床にポリスチレンフォームの断熱材を施工。地域に対応した断熱材を使用し、高い断熱性と気密性を確保。外気温の影響を受けにくいので冬は「暖かく」、夏は「涼しい」家を実現します。

複層ガラスの室外側または室内側の中空層面に特殊金属加工を施した「Low-E複層ガラス」を全室の窓に設置。遮熱・断熱性が高く、紫外線や窓からの熱気を大幅にカットし、冷暖房効率を高めます。

デザイン性、耐久性を兼ね備えた外壁材。コーティング技術の進歩により、壁についた汚れを雨で洗い流すセルフクリーニング効果で、おしゃれな外壁を美しく長持ちさせます。

シロアリを寄せ付けにくい、耐久性に優れたヒノキ土台を採用。また、柱には高品質の集成材を採用。集成材は安定した強度を持ち、耐震性、耐久性に高い強い家を生み出します。

1階と2階の床には、剛床工法を採用。構造用合板を土台や梁に直接留めつけて、床全体を一体化。地震の横揺れにも効果を発揮します。

筋交をバランスよく配置し、接合性能と強度の高い構造用耐力面材を土台や柱へ直接張ることにより、地震や暴風に対する強度がアップする「耐力面材」。外部からの力を建物全体へ分散させ、高い耐震性を確保します。

スウェーデン式サウンディング試験機による地盤調査を実施。強い家づくりの基本は、建物をしっかりと支える地盤です。当分譲地は、着工前に地盤を調査しています。
イベント情報他
| ■現地案内会開催中【開催日時毎週土曜日・日曜日祝日【ご案内時間】10:00~17:00 ※現地スタッフは常駐しておりません。事前に必ずお問い合わせください。 案内会内容 所要時間 約1時間 ・ご要望ヒアリング 10分 ・現地内覧・仕様説明 30分 ・資金計画 20分 ※ご予定に応じて調整は可能です!お気軽にご相談ください! 各時間帯1組様のご案内をしております。 ご来場の際は、必ずご予約のうえお越しください。 (※ご予約が重なってしまった場合は時間調整させていただくケースがございますのでご了承ください。) |
物件概要・取扱い店舗
| 所在地 | 茨城県日立市東大沼町四丁目488-9他 |
|---|---|
| 交通 | JR常磐線「大甕」駅 徒歩約23分(約1,800m) |
| 販売戸数 | 5戸 |
| 総戸数 | 5戸 |
| 価格 | 2,990万円(税込)~3,470万円(税込) |
| 最多価格帯 | - |
| 私道負担・道路 | 無・西側6.0m幅 |
| 諸費用 | - |
| 間取り | 3LDK |
| 延床面積 | 86.95㎡(26.30坪)~103.50㎡(31.30坪) |
| 土地面積 | 198.37㎡(60.00坪)~291.98㎡(88.32坪) |
| 建ぺい率・容積率 | 60%・200% |
| 完成時期 | 2026年5月 |
| 入居時期 | 要相談 |
| 土地の権利形態 | 所有権 |
| 構造・工法 | 木造平屋建て・木造2階建て |
| 用途地域 | 準住居地域(1号棟のみ107.88㎡は準住居地域、95.50㎡は第一種低層住居専用地域に属します。) |
| 地目 | 宅地 |
| その他制限事項 | - |
| その他概要 | 水道:公営上下水道、電力:東京電力、ガス:ー、建築確認番号:第R07A確済1262号他、その他:駐車場2台 |
| お問合せ |
日立店 0120-923-590 [通話料無料]営業時間9:00~18:00(定休日:毎週水曜日)※お問合せの際は「ホームページを見て」とお伝えいただくとスムーズです。 〒316-0022 茨城県日立市大沼町1-6-3 日立ハウジングステーション内 [宅建業免許番号]国土交通大臣(5)第 6857 号 (公社)茨城県宅地建物取引業協会会員 (公社)首都圏不動産公正取引協議会加盟 |
| 売り主・事業主 |
タマホーム株式会社 [建設業許可番号]国土交通大臣許可(特-5)第19013号(般-5)第19013号 [宅建業免許番号]国土交通大臣(5)第6857号 |
●情報更新日:2026.04.07
●次回更新予定日:2026.05.23
※価格は物件の代金総額を表示しており、消費税が課金される場合は税込み価格です。※外観画像・内観画像・CGパース・間取り図に描かれている車両・家具・調度品等は販売価格には含まれません。※完成予想図はいずれも外構・植栽・外観等実際のものと多少異なる場合があります。※販売戸数が複数の物件につきましては、物件の特徴がすべての住戸に該当しない場合があります。※所要時間は、徒歩:道路距離80m/1分間、自転車:道路距離250m/1分間、自動車:道路距離666m/1分間を要するものとして算出した数値となります。
















.jpg)
.jpg)
.jpg)
.jpg)
.jpg)
.jpg)
.jpg)
.jpg)

