タマタウン行田市藤原
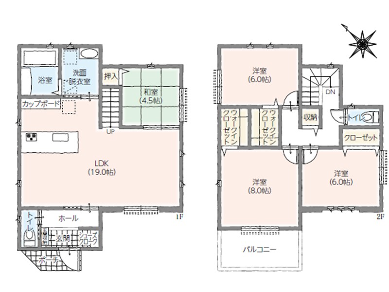
区画プラン・区画図
周辺情報
※地図上に表示される物件の位置は付近住所に所在することを表すものであり、実際の物件所在地とは異なる場合があります。
設備・構造

【屋根】『コロニアルグラッサ』屋根は太陽の紫外線を浴びると次第に色褪せてしまいますが、タマタウン南羽生で採用している屋根は高耐候のガラスコーティング仕様で30年耐久が可能です。

【外壁】『モエンエクセラード16 PREMIUM』変色・褪色に対し30年の保証が付いており、シーリングも高耐候仕様のものを採用。表現豊かな壁面を創り出し趣きを感じさせる外壁材になっております。

【浴室】LIXIL製『アライズ』の広々浴室でゆったりと日々の疲れを癒すことができます。浴槽はお湯が冷めにくい魔法瓶仕様、床はひんやりしにくくお掃除がしやすい仕様になっております。

【24時間換気システム】9棟すべてに吸気も排気も全自動の第一種換気システムを採用。熱交換機能も搭載しておりエアコンコストも削減。フィルターが花粉やPM2.5を除去してくれるため健康面でもご安心です。

【キッチン】クリナップ製『ラクエラ』を採用。シンク前から足元まで収納力抜群。シンプルなステンレスシンクと人造大理石ワークトップとなっております。

【キッチン】9棟すべてに大人気のタッチレス水栓を採用。操作は吐水口先端のセンサーに手をかざすだけ。汚れた手でも触れずに楽々操作ができます。

【電動シャッター】9棟すべての1階に電動シャッターを採用。リモコンから開閉の操作が簡単にでき毎日の負担を削減。台風時もご安心いただけます。

【スマートコントロールキー】9棟すべてに採用。大きな荷物で手がふさがっていてもタッチ1回で楽々施解錠ができます。
イベント情報他
現場説明会開催中 【開催日程】毎週土曜・日曜 【ご案内時間】10:00~18:00 ◎ご案内方法◎担当スタッフが現地にて待機いたします。不在時には、ご連絡いただけましたら速やかに現地にてご案内させていただきます。
物件概要・取扱い店舗
| 所在地 | 埼玉県行田市藤原町1-24-12付近 |
|---|---|
| 交通 | 秩父鉄道「東行田」駅 徒歩約24分 |
| 販売戸数 | 1戸 |
| 総戸数 | 9戸 |
| 価格 | 2,680万円(税込) |
| 最多価格帯 | - |
| 私道負担・道路 | 無・北西側5.99m公道、南西側6.7m公道、東南側6.0m公道 |
| 諸費用 | - |
| 間取り | 4LDK |
| 延床面積 | 105.98㎡(32.05坪) |
| 土地面積 | 149.16㎡(45.12坪) |
| 建ぺい率・容積率 | 60%・200% |
| 完成時期 | 2022年9月 |
| 入居時期 | 要相談 |
| 土地の権利形態 | 所有権 |
| 構造・工法 | 木造軸組工法2階建て |
| 用途地域 | 工業地域 |
| 地目 | 宅地 |
| その他制限事項 | - |
| その他概要 | 水道:公営上下水道、電気:東京電力、ガス:無し、建築確認番号:(1号棟)第22UDI1S建00596号他 |
| お問合せ |
加須店 0120-925-174 [通話料無料]営業時間9:00~18:00(定休日:毎週水曜日)※お問合せの際は「ホームページを見て」とお伝えいただくとスムーズです。 〒347-0062 埼玉県加須市睦町2-6-3 [宅建業免許番号]国土交通大臣(5)第6857号(公社)埼玉県宅地建物取引業協会会員(公社)首都圏不動産公正取引協議会加盟 |
| 売り主・事業主 |
タマホーム株式会社 [建設業許可番号]国土交通大臣許可(特-5)第19013号(般-5)第19013号 [宅建業免許番号]国土交通大臣(5)第6857号 |
●情報更新日:2025.10.22
●次回更新予定日:2026.05.23
※価格は物件の代金総額を表示しており、消費税が課金される場合は税込み価格です。※外観画像・内観画像・CGパース・間取り図に描かれている車両・家具・調度品等は販売価格には含まれません。※完成予想図はいずれも外構・植栽・外観等実際のものと多少異なる場合があります。※販売戸数が複数の物件につきましては、物件の特徴がすべての住戸に該当しない場合があります。※所要時間は、徒歩:道路距離80m/1分間、自転車:道路距離250m/1分間、自動車:道路距離666m/1分間を要するものとして算出した数値となります。





























