タマタウン西金野井Ⅱ
設備・構造
イベント情報他
| 現地案内会開催中 【開催日時】 毎週土曜日・日曜日 祝日 【ご案内時間】 10:00 ~ 17:00 (事前にご予約ください。) |
物件概要・取扱い店舗
| 所在地 | 埼玉県春日部市西金野井字宮橋1227-1他 |
|---|---|
| 交通 | 東武野田線「南桜井」駅 徒歩約19分(約1,500m) |
| 販売戸数 | 5戸 |
| 総戸数 | 5戸 |
| 価格 | 3,780万円(税込)~4,180万円(税込) |
| 最多価格帯 | - |
| 私道負担・道路 | 無・北側開発道路約5.0m |
| 諸費用 | - |
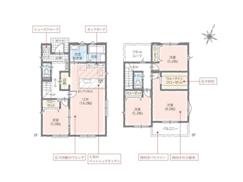
| 間取り | 3LDK・4LDK |
| 延床面積 | 100.60㎡(30.42坪)~107.64㎡(32.55坪) |
| 土地面積 | 140.48㎡(42.50坪)~144.01㎡(43.56坪) |
| 建ぺい率・容積率 | 50%・80% |
| 完成時期 | 2026年6月 |
| 入居時期 | 2026年6月 |
| 土地の権利形態 | 所有権 |
| 構造・工法 | 木造軸組工法/2階建て |
| 用途地域 | 第一種低層住居専用地域 |
| 地目 | 宅地 |
| その他制限事項 | 法第22条区域、下水道処理区域、宅地造成等工事規制区域 |
| その他概要 | 水道:公営水道、電力:東京電力、ガス:都市ガス、建築確認番号:第25UDIIT健05174号他、その他:駐車場2台有 |
| お問合せ |
草加支店 0120-923-730 [通話料無料]営業時間9:00~20:00※お問合せの際は「ホームページを見て」とお伝えいただくとスムーズです。 〒340-0035 埼玉県草加市西町406-1 [宅建業免許番号]国土交通大臣(5)第6857号(公社)埼玉県宅地建物取引業協会会員(公社)首都圏不動産公正取引協議会加盟 |
| 売り主・事業主 |
タマホーム株式会社 [建設業許可番号]国土交通大臣許可(特-5)第19013号(般-5)第19013号 [宅建業免許番号]国土交通大臣(5)第6857号 |
●情報更新日:2026.04.20
●次回更新予定日:2026.05.23
埼玉県の物件一覧
※価格は物件の代金総額を表示しており、消費税が課金される場合は税込み価格です。※外観画像・内観画像・CGパース・間取り図に描かれている車両・家具・調度品等は販売価格には含まれません。※完成予想図はいずれも外構・植栽・外観等実際のものと多少異なる場合があります。※販売戸数が複数の物件につきましては、物件の特徴がすべての住戸に該当しない場合があります。※所要時間は、徒歩:道路距離80m/1分間、自転車:道路距離250m/1分間、自動車:道路距離666m/1分間を要するものとして算出した数値となります。























