タマタウン堀米町
区画プラン・区画図
設備・構造
イベント情報他
| 現地案内開催中(必ず事前にお問い合わせください) 【開催日時】毎週土曜日・日曜日 【ご案内時間】10:00~18:00■ご案内方法 ①現地にお越しいただき、ご案内 ②弊社にご来店いただき、現地までご案内 ③担当スタッフがご自宅までお伺いし、現地までご案内お気軽にお問い合わせください。 |
物件概要・取扱い店舗
| 所在地 | 栃木県佐野市堀米町3582番、3583番 |
|---|---|
| 交通 | 東武佐野線「堀米」駅 徒歩約13分(約1,000m) |
| 販売戸数 | 2戸 |
| 総戸数 | 2戸 |
| 価格 | 3,500万円(税込)・3,580万円(税込) |
| 最多価格帯 | - |
| 私道負担・道路 | 無・接面道路/ 南側公道幅員5.4m |
| 諸費用 | - |
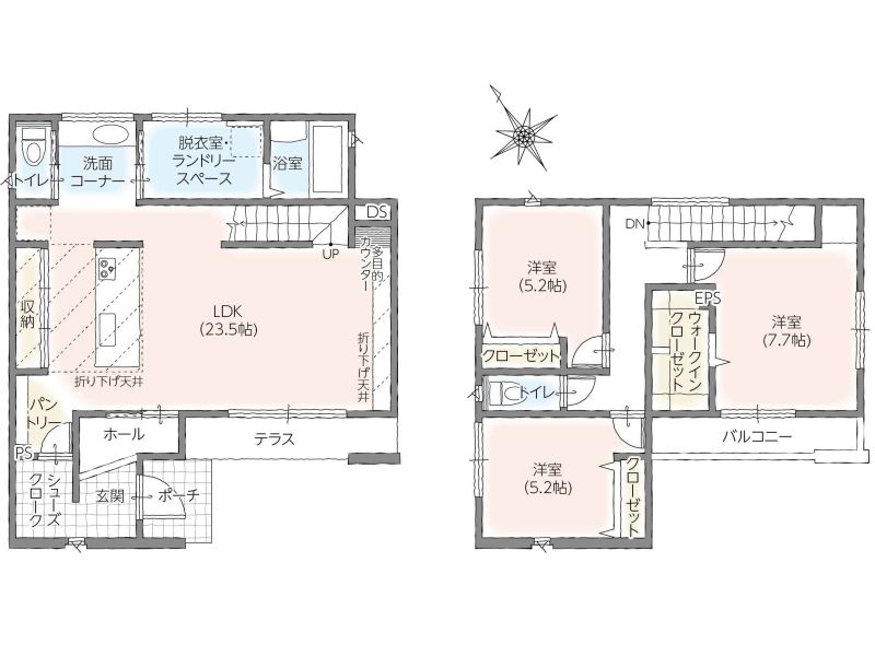
| 間取り | 2階建て、3~4LDK |
| 延床面積 | 105.99㎡(32.06坪)・111.37㎡(33.68坪) |
| 土地面積 | 318.89㎡(96.46坪)・340.81㎡(103.09坪) |
| 建ぺい率・容積率 | 60%・200% |
| 完成時期 | 2026年6月予定 |
| 入居時期 | 2026年7月予定 |
| 土地の権利形態 | 所有権 |
| 構造・工法 | 木造2階建て |
| 用途地域 | 第1種中高層住居専用地域 |
| 地目 | 宅地 |
| その他制限事項 | - |
| その他概要 | 水道:公営上下水道 電力:東京電力 ガス:プロパンガス 建築確認番号:第東日本26-02428号他 |
| お問合せ |
小山住宅公園店 9:00~18:00(水曜定休) [通話料無料]営業時間0120-992-901※お問合せの際は「ホームページを見て」とお伝えいただくとスムーズです。 〒323-0806 栃木県小山市中久喜2-1-23 小山住宅公園内 [宅建業免許番号]国土交通大臣(5)第6857号(公社)栃木県宅地建物取引業協会会員 (公社)首都圏不動産公正取引協議会加盟 |
| 売り主・事業主 |
タマホーム株式会社 [建設業許可番号]国土交通大臣許可(特-5)第19013号(般-5)第19013号 [宅建業免許番号]国土交通大臣(5)第6857号 |
●情報更新日:2026.04.20
●次回更新予定日:2026.05.23
栃木県の物件一覧
※価格は物件の代金総額を表示しており、消費税が課金される場合は税込み価格です。※外観画像・内観画像・CGパース・間取り図に描かれている車両・家具・調度品等は販売価格には含まれません。※完成予想図はいずれも外構・植栽・外観等実際のものと多少異なる場合があります。※販売戸数が複数の物件につきましては、物件の特徴がすべての住戸に該当しない場合があります。※所要時間は、徒歩:道路距離80m/1分間、自転車:道路距離250m/1分間、自動車:道路距離666m/1分間を要するものとして算出した数値となります。























