タマタウン滝の原3丁目
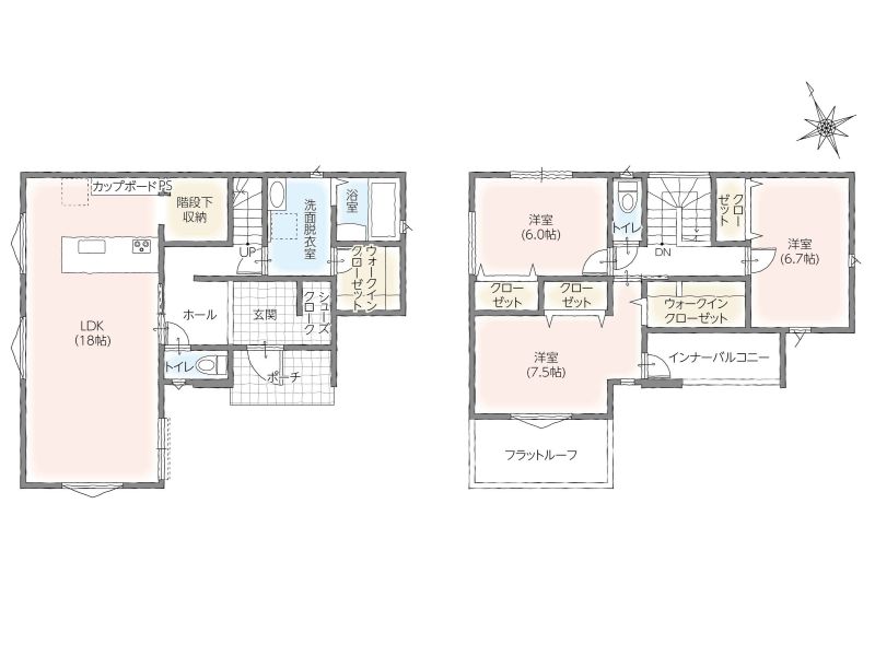
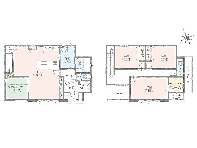
区画プラン・区画図
周辺情報
-
交通東武宇都宮線「南宇都宮」駅 徒歩約12分(約900m)
-
買い物アピタ 宇都宮店 徒歩約24分(約1,900m)
※地図上に表示される物件の位置は付近住所に所在することを表すものであり、実際の物件所在地とは異なる場合があります。
設備・構造

壁に構造用耐力面材を用いることで、「面」で横からの力を受け止め、建物にかかる負担を分散させます。

通し柱の削り取り部分を最小限に抑えることで柱の断面欠損が小さくなり、梁仕口のせん断面強度が大きくなります。金物の塗装には、耐食性に優れた塗装を採用、長年の使用による劣化を防ぎます。

外壁材と構造躯体の間に外気が流れる通気層をつくることで、湿気を外部に放出。結露や湿気を少なくすることで、構造体や断熱材の腐食やカビから守り、建物の耐久性を向上させます。

不同沈下を起こしにくいベタ基礎を標準採用。コンクリートは計画共用期間が約65年の高い耐久性と強度を確保し、鉄筋は、徹底した品質管理が行われる工場で溶接、加工されてユニット鉄筋を採用しています。

外壁には、火に強い不燃材料に認定された外壁材を採用。万一、隣家で火災が発生してももらい火等の影響を受けにくい仕様。

適切な素材選択で外部の熱を伝えにくいサッシ。室内外を断熱樹脂で分離し、屋外の熱を室内側へ伝えにくくしています。室内側の面はすべて樹脂でカバーし、インテリア性に優れ結露防止にも効果を発揮します。
イベント情報他
| 現地案内開催中(必ず事前にお問い合わせください) 【開催日時】毎週土曜日・日曜日 【ご案内時間】10:00~18:00■ご案内方法 ①現地にお越しいただき、ご案内 ②弊社にご来店いただき、現地までご案内 ③担当スタッフがご自宅までお伺いし、現地までご案内お気軽にお問い合わせください。 |
物件概要・取扱い店舗
| 所在地 | 栃木県宇都宮市滝の原三丁目1332番15、1332番20 |
|---|---|
| 交通 | 東武宇都宮線「南宇都宮」駅 徒歩約12分(約900m) |
| 販売戸数 | 2戸 |
| 総戸数 | 2戸 |
| 価格 | 1号棟:4,220万円(税込)・2号棟:3,880万円(税込) |
| 最多価格帯 | - |
| 私道負担・道路 | 有・西側(42条2項道路)幅員4m、南側(42条2項道路)幅員4m |
| 諸費用 | - |
| 間取り | 3~4LDK |
| 延床面積 | 108.48㎡(32.80坪)・109.30㎡(33.05坪) |
| 土地面積 | 178.71㎡(54.05坪)・187.98㎡(56.86坪) |
| 建ぺい率・容積率 | 60%・200% |
| 完成時期 | 2026年4月予定 |
| 入居時期 | 2026年5月予定 |
| 土地の権利形態 | 所有権 |
| 構造・工法 | 木造2階建て |
| 用途地域 | 第一種住居専用地域 |
| 地目 | 宅地 |
| その他制限事項 | - |
| その他概要 | 水道:公営上下水道 電力:東京電力 ガス:プロパンガス 建築確認番号:第東日本25-15738号他 |
| お問合せ |
宇都宮支店 0120-925-184 [通話料無料]営業時間9:00~20:00(水曜定休)※お問合せの際は「ホームページを見て」とお伝えいただくとスムーズです。 〒320-0065 栃木県宇都宮市駒生町3364−53 [宅建業免許番号]国土交通大臣(5)第6857号(公社)栃木県宅地建物取引業協会会員 (公社)首都圏不動産公正取引協議会加盟 |
| 売り主・事業主 |
タマホーム株式会社 [建設業許可番号]国土交通大臣許可(特-5)第19013号(般-5)第19013号 [宅建業免許番号]国土交通大臣(5)第6857号 |
●情報更新日:2026.02.24
●次回更新予定日:2026.05.23
※価格は物件の代金総額を表示しており、消費税が課金される場合は税込み価格です。※外観画像・内観画像・CGパース・間取り図に描かれている車両・家具・調度品等は販売価格には含まれません。※完成予想図はいずれも外構・植栽・外観等実際のものと多少異なる場合があります。※販売戸数が複数の物件につきましては、物件の特徴がすべての住戸に該当しない場合があります。※所要時間は、徒歩:道路距離80m/1分間、自転車:道路距離250m/1分間、自動車:道路距離666m/1分間を要するものとして算出した数値となります。































