タマタウン広畑区蒲田
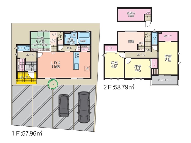
区画プラン・区画図
周辺情報
-
交通JR「英賀保」駅まで約2,880m(徒歩約36分)
-
郵便局西蒲田郵便局まで約1,183m(徒歩約15分)
-
病院姫路赤十字病院まで約2,262m(徒歩約29分)
-
ショッピングヤマダストアーまで約1,898m(徒歩約24分)
-
ドラッグストアマツモトキヨシまで約1,874m(徒歩約24分)
※地図上に表示される物件の位置は付近住所に所在することを表すものであり、実際の物件所在地とは異なる場合があります。
設備・構造

【地盤調査】スウェーデン式サウンディング試験機による地盤調査を実施。強い家づくりの基本は、建物をしっかりと支える地盤です。当分譲地は、着工前に地盤を調査しています。

【ベタ基礎】ベタ基礎を標準採用。コンクリートは、高耐久性と強度を確保、鉄筋は徹底管理した工場で溶接・加工されたユニット鉄筋を採用。建物をしっかり支え地震の揺れにも耐える強固な家づくりを実現しています。
.jpg)
【土台・集成材】耐久性に優れた土台を採用。また、柱には高品質の集成材を採用。集成材は安定した強度を持ち、耐震性、耐久性に高い強い家を生み出します。

【通気工法】外壁材と構造躯体の間に外気が流れる通気層をつくることで、湿気を外部に放出。壁内の通気層は屋根裏まで通っており、構造体や断熱材を腐食やカビから守り、建物の耐久性を向上させます。

【剛床工法】1階と2階の床には、剛床工法を採用。構造用合板を土台や梁に直接留めつけて、床全体を一体化。地震の横揺れにも効果を発揮します。

【耐力面材】筋交をバランスよく配置し、接合性能と強度の高い構造用耐力面材を土台や柱、梁へ直接張ることにより、地震や暴風に対する強度がアップ。外部からの力を建物全体へ分散させ、高い耐震性を確保します。
その他の仕様
地盤調査済/システムキッチン/浴室換気乾燥暖房機/LDK16帖以上/和室/シャワー付洗面化粧台/対面式キッチン/複層ガラス/温水洗浄便座/TVモニター付インターホン/ウォークインクローゼット/食器洗浄乾燥器/ペニンシュラキッチン/1坪タイプ浴室
イベント情報他
| ◆現地案内会開催中◆(見学ご希望の方は事前に担当店舗までお問合せください) 【開催日時】毎週土曜日・日曜日 10:00~17:00※事前のご予約制となります。当ページの下記店舗まで事前にお問合せまたはご予約ください。 |
物件概要・取扱い店舗
| 所在地 | 兵庫県姫路市広畑区蒲田3-78他 |
|---|---|
| 交通 | JR山陽本線「英賀保」駅 徒歩約36分 |
| 販売戸数 | 2戸 |
| 総戸数 | 3戸 |
| 価格 | 3,280万円(税込)~3,450万円(税込) |
| 最多価格帯 | - |
| 私道負担・道路 | 道路幅:6m、アスファルト舗装、公道、私道負担無し、2号地土地面積は路地状部分89.93㎡ |
| 諸費用 | - |
| 間取り | 3LDK~4LDK |
| 延床面積 | 110.96㎡(33.56坪)~116.75㎡(35.31坪) |
| 土地面積 | 167.09㎡(50.54坪)~261.32㎡(79.04坪) |
| 建ぺい率・容積率 | 60%・200% |
| 完成時期 | 2025年4月 |
| 入居時期 | 要相談 |
| 土地の権利形態 | 所有権 |
| 構造・工法 | 木造軸組工法2階建て |
| 用途地域 | 第二種中高層住居専用地域 |
| 地目 | 宅地 |
| その他制限事項 | 法22条区域、北側斜線、道路斜線制限、日影規制 |
| その他概要 | 水道:公営上下水道、電力:関西電力、ガス:オール電化のため無し、建築確認番号:第HK24-12054号他 |
| お問合せ |
姫路営業所 0120-923-200 [通話料無料]営業時間9:00~20:00(定休日:毎週水曜日)※お問合せの際は「ホームページを見て」とお伝えいただくとスムーズです。 〒670-0952 兵庫県 姫路市 南条2丁目8 [宅建業免許番号]国土交通大臣(5)第6857号 (一社)兵庫県宅地建物取引業協会会員(公社)近畿地区不動産公正取引協議会加盟 |
| 売り主・事業主 |
タマホーム株式会社 [建設業許可番号]国土交通大臣許可(特-5)第19013号(般-5)第19013号 [宅建業免許番号]国土交通大臣(5)第6857号 |
●情報更新日:2025.10.21
●次回更新予定日:2025.12.19
※価格は物件の代金総額を表示しており、消費税が課金される場合は税込み価格です。※外観画像・内観画像・CGパース・間取り図に描かれている車両・家具・調度品等は販売価格には含まれません。※完成予想図はいずれも外構・植栽・外観等実際のものと多少異なる場合があります。※販売戸数が複数の物件につきましては、物件の特徴がすべての住戸に該当しない場合があります。※所要時間は、徒歩:道路距離80m/1分間、自転車:道路距離250m/1分間、自動車:道路距離666m/1分間を要するものとして算出した数値となります。































