タマタウン熊野Ⅲ
区画プラン・区画図

【完成イメージ】全棟敷地面積75坪以上!リビングが18.7~22.1帖と開放的な広さを確保できるのは、平屋ならでは。現代のニーズに応えたタマホームこだわりの平屋プランです!

全棟75坪以上の敷地面積だから叶う、ゆとりある平屋プラン!駐車スペースは3台分確保しているので、来客時も安心です♪

【2号地 外観】

【2号地 間取り】収納スペースをたっぷり確保したプラン!リビング上部にロフトを設置しました。季節物の荷物や家電などの収納に便利です。また、WICや階段下の基礎内収納、リネン庫など、豊富な収納スペースを完備。

【3号地 外観】

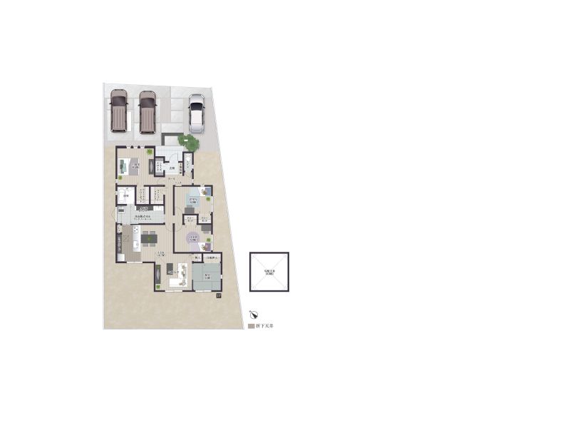
【3号地 間取り】ゆとりある玄関には大容量のシューズクロークがあります。ベビーカーなども一緒に収納可能。ロフトを設置することで、収納スペースをたっぷり確保。階段下収納など工夫を凝らした設計です。

【4号地 外観】

【4号地 間取り】キッチンから洗面脱衣室に直接出入りできる回遊動線!広めの洗面脱衣室には室内物干し金物2つ、カウンターを設置して洗濯の手間を短縮しました。SCLやFCLなど、収納スペースもしっかり備えました♪
周辺情報
※地図上に表示される物件の位置は付近住所に所在することを表すものであり、実際の物件所在地とは異なる場合があります。
設備・構造
.jpg)
【LDK】
.jpg)
【リビング】
.jpg)
【キッチン】
.jpg)
【キッチン・ダイニング】

電気を使って鍋自体を直接加熱するIHクッキングヒーター。不完全燃焼や立ち消えの心配もないので安心です。水蒸気の発生や油の飛び散りも少ないため、室内をよりきれいに保つことができます。(※画像はイメージ)

空気の熱でお湯を沸かす節約上手な全自動給湯器エコキュート。時間をかけてゆっくりとお湯を沸かし昼間に比べて割安な深夜電力を利用することで大幅なランニングコストの削減を実現できます。(※画像はイメージ)

複層ガラスの「Low-E複層ガラス」を全室の窓に設置。遮熱・断熱性が高く、紫外線や窓からの熱気を大幅にカット。カーテンなどの日焼けを防ぎ、冷暖房効率を高めます。

スウェーデン式サウンディング試験機による地盤調査を実施。強い家づくりの基本は、建物をしっかりと支える地盤です。当分譲地は、着工前に地盤を調査しています。

ベタ基礎を標準採用。コンクリートは、高耐久性と強度を確保、鉄筋は徹底管理した工場で溶接・加工されたユニット鉄筋を採用。建物をしっかり支え地震の揺れにも耐える強固な家づくりを実現しています。

筋交をバランスよく配置し、地震や暴風に対する強度がアップする「耐力面材」。外部からの力を建物全体へ分散させ、高い耐震性を確保します。

外壁には、火に強い不燃材料に認定された外壁材を標準仕様として採用。万一、隣家で火災が発生した際、もらい火等の影響を受けにくく、ご家族と住まいをしっかりと守ります。
イベント情報他
| 【毎週土日 完成前説明会開催中 】 ■ご案内方法: 当分譲住宅について、店舗にて説明会を開催しております。弊社までご来店いただき、説明会の後に現地へのご案内も可能です。貴重なお時間の中でご希望の情報をご案内します。ご都合に合わせて『知りたい情報だけ』という短時間のご案内も可能です。 ■開催日/毎週土曜日・日曜日・祝日 ■時間/10:00~17:00 ■場所/タマホーム株式会社 筑後支店 ※ご来店の際は必ず事前にご予約をお願いいたします。 |
物件概要・取扱い店舗
| 所在地 | 福岡県筑後市大字熊野1062番1他 |
|---|---|
| 交通 | JR鹿児島本線「羽犬塚」駅 徒歩約25分 |
| 販売戸数 | 3戸 |
| 総戸数 | 4戸 |
| 価格 | 3,360万円(税込)~3,480万円(税込) |
| 最多価格帯 | - |
| 私道負担・道路 | 私道負担:無・道路:公道 |
| 諸費用 | - |
| 間取り | 4LDK |
| 延床面積 | 107.23㎡(32.43坪)~109.72㎡(33.19坪) |
| 土地面積 | 253.93㎡(76.81坪)~270.83㎡(81.92坪) |
| 建ぺい率・容積率 | 60%・200% |
| 完成時期 | 2025年9月 |
| 入居時期 | 2025年11月下旬予定 |
| 土地の権利形態 | 所有権 |
| 構造・工法 | 木造軸組工法 |
| 用途地域 | 第一種住居地域 |
| 地目 | 宅地 |
| その他制限事項 | |
| その他概要 | 水道:上水道:公営上水道 下水道:浄化槽 電気:オール電化 建築確認番号:第KJH25-00297-1号他 |
| お問合せ |
筑後支店 0120-923-010 [通話料無料]営業時間10:00~20:00※お問合せの際は「ホームページを見て」とお伝えいただくとスムーズです。 〒833-0055 福岡県筑後市大字熊野180 [宅建業免許番号]国土交通大臣(5)第6857号(公社)福岡県宅地建物取引業協会会員(一社)九州不動産公正取引協議会加盟 |
| 売り主・事業主 |
タマホーム株式会社 [建設業許可番号]国土交通大臣許可(特-5)第19013号(般-5)第19013号 [宅建業免許番号]国土交通大臣(5)第6857号 |
●情報更新日:2025.11.21
●次回更新予定日:2025.12.19
※価格は物件の代金総額を表示しており、消費税が課金される場合は税込み価格です。※外観画像・内観画像・CGパース・間取り図に描かれている車両・家具・調度品等は販売価格には含まれません。※完成予想図はいずれも外構・植栽・外観等実際のものと多少異なる場合があります。※販売戸数が複数の物件につきましては、物件の特徴がすべての住戸に該当しない場合があります。※所要時間は、徒歩:道路距離80m/1分間、自転車:道路距離250m/1分間、自動車:道路距離666m/1分間を要するものとして算出した数値となります。























