タマタウン紅葉ヶ丘
区画プラン・区画図

【外観イメージパース】全3邸 !ダークカラーを基調とした洗練された外観デザイン。家づくりのノウハウを結集したスタイリッシュな住まいです!

【全体区画図】全区画50坪超のゆとりのある敷地に、駐車2台可能なスペースを確保。

【2号地】販売価格:5,280万円/敷地面積167.19㎡(50.57坪)/延床面積:109.50㎡(33.12坪)/間取り:4LDK

【2号地/2面バルコニーのある家】 柔らかな自然光・心地の良い通風に満たされる邸宅♪2面バルコニーを採用し、開放的で明るい居住空間が広がります。玄関ホールには独立洗面台を設け、衛生面も配慮。子育てファミリーに優しい工夫が詰まったプラン設計です。

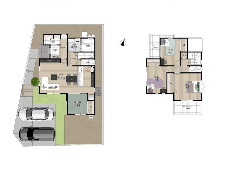
【3号地】販売価格:5,180万円/敷地面積:165.86㎡(50.17坪)/延床面積:114.26㎡(34.56坪)/間取り:4LDK

【3号地/広々ワイドバルコニーのある家】 7.0帖のワイドバルコニーは、気持ちの良いお洗濯はもちろん、ペットとの遊び場やテーブルや椅子を置いてカフェテラスとして楽しんだりと多様にご活用いただけます♪ゆったりとくつろげる広々20帖のLDK、豊富な収納スペースも魅力的です。
周辺情報
※地図上に表示される物件の位置は付近住所に所在することを表すものであり、実際の物件所在地とは異なる場合があります。
設備・構造

【クリナップ】ワークトップ・シンクともに高級感漂う人工大理石を採用!!食器洗い乾燥機も標準搭載♪ ※カラー・デザインは異なります。

TOTOのカラリ床でお手入れカンタン、お掃除ラクラクです♪表面を炭素の膜で覆ったお掃除ラクラク鏡!簡単なお手入れで水あかをラクに落とせます。※カラー・デザインは異なります。

【LIXIL】 アプリでスマホと連動可能なファミロックを採用!! 荷物が多い際には大変便利です♪ ※区画によってカラー・デザインが異なります。

外壁には、火に強い不燃材料に認定された外壁材を標準仕様として採用。万一、隣家で火災が発生した際、もらい火等の影響を受けにくく、ご家族と住まいをしっかりと守ります。

ベタ基礎を標準採用。コンクリートは、高耐久性と強度を確保、鉄筋は徹底管理した工場で溶接・加工されたユニット鉄筋を採用。建物をしっかり支え地震の揺れにも耐える強固な家づくりを実現しています。

外壁材と構造躯体の間に外気が流れる通気層をつくることで、湿気を外部に放出。壁内の通気層は屋根裏まで通り、結露や湿気を少なくすることで、構造体や断熱材を腐食やカビから守り、建物の耐久性を向上させます。

筋交をバランスよく配置し、接合性能と強度の高い構造用耐力面材を土台や柱、梁へ直接張ることにより、地震や暴風に対する強度がアップする「耐力面材」。外部の力を建物全体へ分散させ、高い耐震性を確保します。

大切な家と家族を守るシャッター雨戸は、ロックを内側からしかはずせないから防犯性に優れ、台風などにも安心です。
その他の仕様
地盤調査済/駐車2台可/土地50坪以上/浴室暖房乾燥機/全居室収納/和室/整形地/ワイドバルコニー/温水洗浄便座 /床下収納/浴室に窓/TVモニタ付インターホン/WIC/天井高2.5m以上/IH/リビング階段/全居室複層ガラス/シューズクローゼット/食器洗浄乾燥機/オール電化/浄水器/スマートキー
イベント情報他
| ■現地案内会開催中 【開催日時】毎週土曜日・日曜日・祝日 【ご案内時間】10:30~17:00 ※現地にスタッフは常駐しておりません。事前に必ずお問合せください。 |
物件概要・取扱い店舗
| 所在地 | 福岡県春日市紅葉ヶ丘東6丁目25 付近 |
|---|---|
| 交通 | 西鉄バス「大土居」停 徒歩5分 |
| 販売戸数 | 3戸 |
| 総戸数 | 3戸 |
| 価格 | 5,180万円(税込)~5,380万円(税込) |
| 最多価格帯 | - |
| 私道負担・道路 | 無し・道路幅:6.1m、アスファルト舗装 |
| 諸費用 | - |
| 間取り | 4LDK |
| 延床面積 | 109.50㎡~115.10㎡(33.12坪~34.81坪) |
| 土地面積 | 165.86㎡~178.81㎡(50.17坪~54.09坪) |
| 建ぺい率・容積率 | 50%・80% |
| 完成時期 | 2026年2月中旬予定 |
| 入居時期 | 2026年2月下旬予定 |
| 土地の権利形態 | 所有権 |
| 構造・工法 | 木造軸組工法 |
| 用途地域 | 第一種低層住居専用地域 |
| 地目 | 宅地 |
| その他制限事項 | - |
| その他概要 | 水道:上水道/公営、下水道/公共 電気:九州電力 ガス:オール電化のため無 建築確認番号:第R07SHC121456号 他 その他:駐車場2台 |
| お問合せ |
福岡支店 0120-923-030 [通話料無料]営業時間9:00~18:00(定休日:毎週水曜日)※お問合せの際は「ホームページを見て」とお伝えいただくとスムーズです。 〒811-0135 福岡県太宰府市向佐野1丁目12番7号 [宅建業免許番号]国土交通大臣(5)第6857号(公社)福岡県宅地建物取引業協会 (一社)九州不動産公正取引協議会 |
| 売り主・事業主 |
タマホーム株式会社 [建設業許可番号]国土交通大臣許可(特-5)第19013号(般-5)第19013号 [宅建業免許番号]国土交通大臣(5)第6857号 |
●情報更新日:2026.1.26
●次回更新予定日:2026.2.16
※価格は物件の代金総額を表示しており、消費税が課金される場合は税込み価格です。※外観画像・内観画像・CGパース・間取り図に描かれている車両・家具・調度品等は販売価格には含まれません。※完成予想図はいずれも外構・植栽・外観等実際のものと多少異なる場合があります。※販売戸数が複数の物件につきましては、物件の特徴がすべての住戸に該当しない場合があります。※所要時間は、徒歩:道路距離80m/1分間、自転車:道路距離250m/1分間、自動車:道路距離666m/1分間を要するものとして算出した数値となります。

























