タマタウン三股小東
区画プラン・区画図

全体区画図

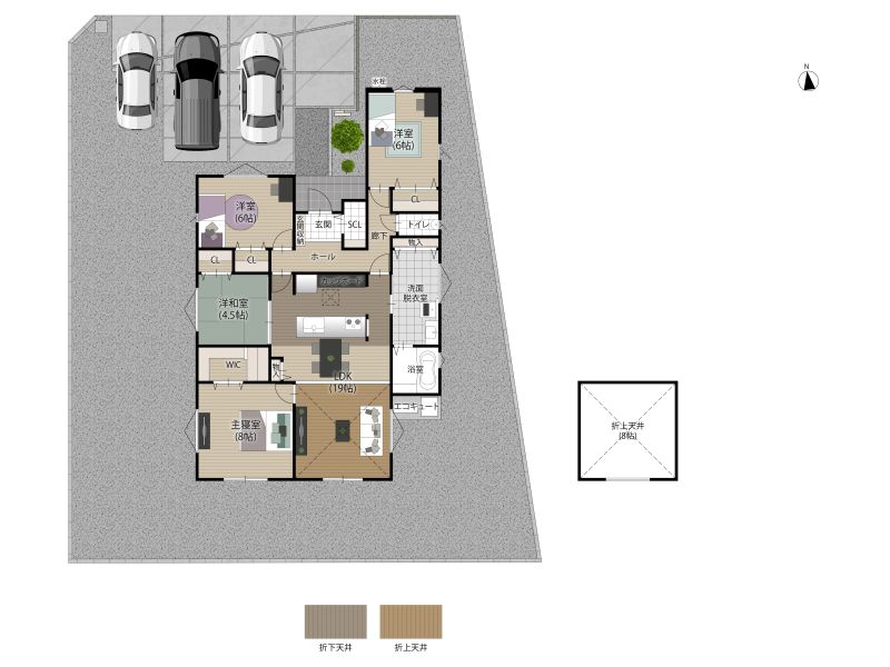
LDKは19.0帖の開放的な寛ぎ空間となっています。リビングは折上天井とすることで、ゆとりある空間を演出しています。家事がスムーズにこなせる回遊動線のあるプランです。

収納スペースたっぷり確保したプラン。家族みんなが使いやすい玄関近くに、FCLを備えました。キッチンには冷蔵庫もスッキリ収納できる大容量のパントリーを設置。SCL、WICなど収納豊富です!

洗面脱衣室を広く確保し、室内物干し金物を2つ設置!洗うから干す、取り込むを一箇所で完結させます。また、物入れを設置することで、ランドリー用品がスッキリ片付きます。

LDKと洋和室を合わせると24.6帖の広さとしてお使いいただけます!折上天井のリビングは、ゆとりある空間を演出しています。水回りを集中して配置することで、家事動線を短縮できます。
周辺情報

「徳・知・体の調和のとれた人間性豊かな実践力のある児童の育成」を教育目標に掲げています。公式HPでは学校行事を中心に、児童たちの普段の様子を垣間見ることができます。

「三股プライド」と称し、心と形を整えて三股中生としての誇りを大事にしています。小中一貫教育の取組みとして「ミニ子どもサミット」を実施。三股町内の7校が伝統教育の取り組みについて話し合いをします。

心豊かで優しい子、元気いっぱいに頑張る子、よく考え工夫する子を子どもたちの理想の姿として目指しています。国際交流やスイミング、体操教室など、様々なカリキュラムを取り入れています。

「早馬神社」が併設している公園。遊具や広場、トイレが設置されています。毎年春に行われる「早馬まつり」が有名で、このお祭りは「母智丘の大祭」と並んで都城・北諸地方の二大祭りと言われています。

24時間営業のスーパー。食料品や生活用品だけではなく、カー用品や家電、衣類など幅広く取り扱いしております。【営業時間】24時間、カー用品:24時間、ドラッグ:9~21時
※地図上に表示される物件の位置は付近住所に所在することを表すものであり、実際の物件所在地とは異なる場合があります。
設備・構造
イベント情報他
| 現地案内開催中(事前に必ずお問い合わせください。)【開催日時】毎週土曜・日曜【ご案内時間】10:00~17:00 |
物件概要・取扱い店舗
| 所在地 | 宮﨑県北諸県郡三股町大字樺山4061-3~4061-9 |
|---|---|
| 交通 | JR日豊本線「三股」駅 徒歩約13分(約1,040m) |
| 販売戸数 | 5戸 |
| 総戸数 | 6戸 |
| 価格 | 2,880万円(税込)~3,150万円(税込) |
| 最多価格帯 | - |
| 私道負担・道路 | 私道負担:無 ・ 道路幅:4.7m~6.8m |
| 諸費用 | - |
| 間取り | 4LDK |
| 延床面積 | 100.61㎡(30.43坪)~107.23㎡(32.43坪) |
| 土地面積 | 331.38㎡(100.24坪)~406.86㎡(123.07坪) |
| 建ぺい率・容積率 | 50%・100% |
| 完成時期 | 2026年5月 |
| 入居時期 | 2026年5月/要相談 |
| 土地の権利形態 | 所有権 |
| 構造・工法 | 木造1階建(軸組工法) |
| 用途地域 | 1種低層 |
| 地目 | 宅地 |
| その他制限事項 | - |
| その他概要 | 水道:公営水道・本下水 電力:九州電力 ガス:オール電化の為無し 建築確認番号:第R07SHC126233号、第R07SHC126488号、第RO07SHC126516号、第R07SHC126597号 |
| お問合せ |
都城店 0120-936516 [通話料無料]営業時間9:00~20:00(定休日:毎週水曜日)※お問合せの際は「ホームページを見て」とお伝えいただくとスムーズです。 〒885-0006宮崎県都城市吉尾町73-1 [宅建業免許番号]国土交通大臣(5)第6857号 (一般)宮崎県宅地建物取引協会会員(一般)九州不動産公正取引協議会加盟 |
| 売り主・事業主 |
タマホーム株式会社 [建設業許可番号]国土交通大臣許可(特-5)第19013号(般-5)第19013号 [宅建業免許番号]国土交通大臣(5)第6857号 |
●情報更新日:2026.03.26
●次回更新予定日:2026.05.23
※価格は物件の代金総額を表示しており、消費税が課金される場合は税込み価格です。※外観画像・内観画像・CGパース・間取り図に描かれている車両・家具・調度品等は販売価格には含まれません。※完成予想図はいずれも外構・植栽・外観等実際のものと多少異なる場合があります。※販売戸数が複数の物件につきましては、物件の特徴がすべての住戸に該当しない場合があります。※所要時間は、徒歩:道路距離80m/1分間、自転車:道路距離250m/1分間、自動車:道路距離666m/1分間を要するものとして算出した数値となります。


















