タマタウン木太町Ⅱ
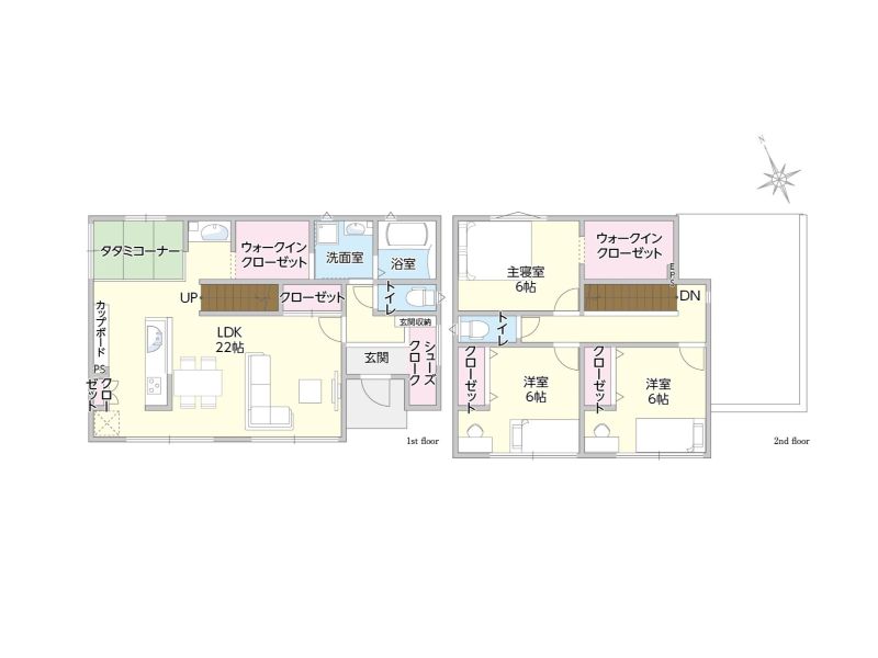
区画プラン・区画図
周辺情報
※地図上に表示される物件の位置は付近住所に所在することを表すものであり、実際の物件所在地とは異なる場合があります。
設備・構造

長期優良住宅に求められる4つの性能基準について、当分譲戸建商品は、標準仕様において、長期優良住宅の認定条件全4項目で最高等級を確保しています(住宅性能表示制度での等級を適用)。

大切な家と家族を守るシャッター雨戸は、ロックを内側からしかはずせないから防犯性に優れ、台風などにも安心です(画像はイメージ)。

デザイン性、耐久性を兼ね備えた外壁材。コーティング技術の進歩により、壁についた汚れを雨で洗い流すセルフクリーニング効果で、おしゃれな外壁を美しく長持ちさせます。

筋交をバランスよく配置し、接合性能と強度の高い構造用耐力面材を土台、柱、梁へ直接貼ることにより、地震や暴風に対する強度アップする。外部からの力を建物全体に分散させ、高い耐震性を確保します。

宅配ボックスを設置することで、再配達や受取の待ち時間の手間を省くことで自由な時間を創り、ストレスフリーなライフスタイルをご提案します(画像はイメージ)。
イベント情報他
| 現地案内会開催中 【開催日時】 毎週土曜日・日曜日 【ご案内時間】 10:00~17:00 事前に必ずご予約下さい。 |
物件概要・取扱い店舗
| 所在地 | 香川県高松市木太町4410番地5、他 |
|---|---|
| 交通 | 琴平電鉄長尾線 「元山」駅 徒歩11分(約900m) |
| 販売戸数 | 3区画 |
| 総戸数 | 3区画 |
| 価格 | 3,830万円(税込)~3,880万円(税込) |
| 最多価格帯 | - |
| 私道負担・道路 | 無、東4.0m幅 |
| 諸費用 | - |
| 間取り | 4LDK |
| 延床面積 | 104.33㎡(31.55坪)~108.89㎡(32.93坪) |
| 土地面積 | 201.00㎡(60.80坪)~225.56㎡(68.23坪) |
| 建ぺい率・容積率 | 60%・200% |
| 完成時期 | 2026年4月 |
| 入居時期 | 2026年5月下旬 |
| 土地の権利形態 | 所有権 |
| 構造・工法 | 木造2階建て |
| 用途地域 | 第1種住居地域 |
| 地目 | 宅地 |
| その他制限事項 | - |
| その他概要 | 水道:公営上水道 電気:四国電力 ガス:無 建築確認番号:第確R07-1747号、第確R07-1748号,第確R07-1742号 オール電化/省令準耐火仕様 |
| お問合せ |
観音寺店 0120-937-974 [通話料無料]営業時間9:00~20:00(水曜日定休日)※お問合せの際は「ホームページを見て」とお伝えいただくとスムーズです。 香川県観音寺市植田町字南原1108-1 タマホーム株式会社 国土交通大臣(5)第6857号 香川県宅地建築取引業協会会員 四国地区不動産公正取引協議会加盟 |
| 売り主・事業主 |
タマホーム株式会社 [建設業許可番号]国土交通大臣許可(特-5)第19013号(般-5)第19013号 [宅建業免許番号]国土交通大臣(5)第6857号 |
●情報更新日:2026.03.19
●次回更新予定日:2026.04.22
※価格は物件の代金総額を表示しており、消費税が課金される場合は税込み価格です。※外観画像・内観画像・CGパース・間取り図に描かれている車両・家具・調度品等は販売価格には含まれません。※完成予想図はいずれも外構・植栽・外観等実際のものと多少異なる場合があります。※販売戸数が複数の物件につきましては、物件の特徴がすべての住戸に該当しない場合があります。※所要時間は、徒歩:道路距離80m/1分間、自転車:道路距離250m/1分間、自動車:道路距離666m/1分間を要するものとして算出した数値となります。



























