タマタウン青森泉川小
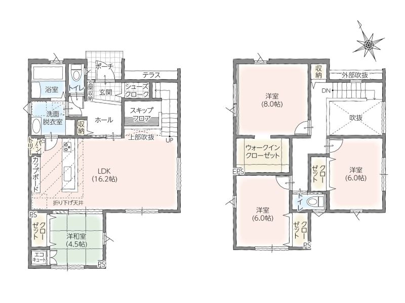
区画プラン・区画図
周辺情報
※地図上に表示される物件の位置は付近住所に所在することを表すものであり、実際の物件所在地とは異なる場合があります。
設備・構造

【キッチン】キッチンは人造大理石のワークトップに食洗器も搭載しており、収納量もたっぷりの家事楽キッチンとなっております。(※画像はイメージです)

【浴室】魔法びん浴槽で時間差の入浴も可能となっており、ほっカラリ床でお掃除楽々。浴室乾燥暖房機も標準搭載しております。(※画像はイメージです)
.jpg)
【洗面台】幅900mmの三面鏡付き洗面台で収納力抜群です!(※画像はイメージです)
.jpg)
【トイレ】凹凸が少なく、ノズルまわりもスッキリしている為、お掃除楽々。汚れが付きにくいのも特徴です。(※画像はイメージです)

【タッチキー】大きな荷物で手がふさがっていてもタッチ1回で楽々カギを開け閉めできます。(※画像はイメージです)

【ベタ基礎工法】鉄筋入りコンクリートベタ基礎を採用。地面から上がってくる湿気を防ぎ、シロアリの侵入も防ぎます。

【断熱材】壁と天井にグラスウール、床にポリスチレンフォームの断熱材を施工。地域に対応した断熱材を使用し、高い断熱性と気密性を確保。外気温の影響を受けにくいので冬は「暖かく」、夏は「涼しい」家を実現◎

【窓】断熱性と遮熱性にトリプルガラス樹脂サッシ。紫外線、赤外線が金属膜で反射されるため、カーテンなどの日焼けを防ぎ、夏の暑い日射しを遮断して冷房効果を高めます。
その他の仕様
浴室乾燥機/LDK15畳以上/ウォークインクローゼット/食器洗浄乾燥機
イベント情報他
| 【タマタウン青森泉川小 説明会開催中】ご案内方法:当戸建分譲住宅について、現地・店舗にて説明会を開催しております。貴重なお時間の中でご希望の情報をご案内させていただきます。お気軽にお問い合わせください。※ご来店の際は必ず事前にご予約をお願いいたします。 ■開催日/毎週土曜日・日曜日・祝日 ■時間/10:00~18:00 ■場所/タマホーム株式会社 青森支店 |
物件概要・取扱い店舗
| 所在地 | 青森県青森市大字浪館字泉川9-10、9-11 |
|---|---|
| 交通 | 青い森鉄道「青森」駅 徒歩約40分 |
| 販売戸数 | 2戸 |
| 総戸数 | 2戸 |
| 価格 | 3,330万円(税込)・3,380万円(税込) |
| 最多価格帯 | - |
| 私道負担・道路 | 無・北側公道約6.4m |
| 諸費用 | 登記費用、火災保険費用、融資手数料等 |
| 間取り | 4LDK |
| 延床面積 | 115.10㎡(34.81坪)・114.68㎡(34.69坪) |
| 土地面積 | 177.71㎡(53.75坪)・172.12㎡(52.06坪) |
| 建ぺい率・容積率 | 60%・80% |
| 完成時期 | 2026年3月 |
| 入居時期 | 要相談 |
| 土地の権利形態 | 所有権 |
| 構造・工法 | 木造軸組工法2階建て |
| 用途地域 | 第一種低層住居専用地域 |
| 地目 | 宅地 |
| その他制限事項 | 青森市景観条例/建築基準法第22条地域 |
| その他概要 | 水道:公営上下水道、電力:東北電力、ガス:オール電化の為なし、建築確認番号:R07確認建セ青青森第0401号他 |
| お問合せ |
青森支店 0120-926-580 [通話料無料]営業時間9:00~20:00(定休日:毎週水曜日 ※詳細はお問い合わせください)※お問合せの際は「ホームページを見て」とお伝えいただくとスムーズです。 〒030-0847 青森県青森市東大野2-1-20 [宅建業免許番号]国土交通大臣(5)第6857号(公社)青森県宅地建物取引業協会会員 東北地区不動産公正取引協議会加盟 |
| 売り主・事業主 |
タマホーム株式会社 [建設業許可番号]国土交通大臣許可(特-5)第19013号(般-5)第19013号 [宅建業免許番号]国土交通大臣(5)第6857号 |
●情報更新日:2026.01.20
●次回更新予定日:2026.05.23
※価格は物件の代金総額を表示しており、消費税が課金される場合は税込み価格です。※外観画像・内観画像・CGパース・間取り図に描かれている車両・家具・調度品等は販売価格には含まれません。※完成予想図はいずれも外構・植栽・外観等実際のものと多少異なる場合があります。※販売戸数が複数の物件につきましては、物件の特徴がすべての住戸に該当しない場合があります。※所要時間は、徒歩:道路距離80m/1分間、自転車:道路距離250m/1分間、自動車:道路距離666m/1分間を要するものとして算出した数値となります。















.jpg)
-300x225.jpg)














