タマタウン沼館
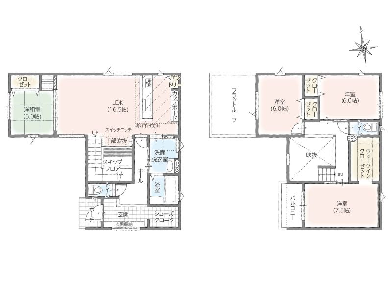
区画プラン・区画図
周辺情報
※地図上に表示される物件の位置は付近住所に所在することを表すものであり、実際の物件所在地とは異なる場合があります。
設備・構造

【地盤調査】スウェーデン式サウンディング試験機による地盤調査を実施。強い家づくりの基本は、建物をしっかりと支える地盤です。当分譲地は、着工前に地盤を調査しています。

【ベタ基礎】ベタ基礎を標準採用。コンクリートは、高耐久性と強度を確保、鉄筋は徹底管理した工場で溶接・加工されたユニット鉄筋を採用。建物をしっかり支え地震の揺れにも耐える強固な家づくりを実現しています。

【土台、集成材】耐久性に優れた土台を採用。また、柱には高品質の集成材を採用。集成材は安定した強度を持ち、耐震性、耐久性に高い強い家を生み出します。

【通気工法】外壁材と構造躯体の間に外気が流れる通気層をつくることで、湿気を外部に放出。壁内の通気層は屋根裏まで通っており、構造体や断熱材を腐食やカビから守り、建物の耐久性を向上させます。

【剛床工法】1階と2階の床には、剛床工法を採用。構造用合板を土台や梁に直接留めつけて、床全体を一体化。地震の横揺れにも効果を発揮します。
.jpg)
ファミリーライブラリーとしても使用できるスキップフロアは家族みんなが自由に使える図書館のような場所。読書や仕事、お子様と一緒に勉強するなど様々な使い方があります(画像はイメージ)。

食材・調味料をスッキリ収納できるパントリーや豊富な収納力を誇るカップボード。日々のお料理を楽しく快適にする工夫が詰まっています(画像はイメージ)。
イベント情報他
| 2026年4月完成予定 ■案内方法:当分譲住宅について、現地で見学会を開催しております。弊社までご来店いただき、説明会の後に現地へのご案内も可能です。貴重なお時間の中でご希望の情報をご案内させていただきます。お気軽にお問い合わせください。※ご来店の際は必ず事前にご予約をお願いいたします。 ■その他、各種ご相談もお気軽にご相談ください。住宅ローンのご相談や、資金計画についてなど不安なことを一緒に解決いたします。 ■開催日/毎週土曜日・日曜日・祝日 ■時間/10:00~18:00 ■場所/タマホーム株式会社 八戸下田営業所 |
物件概要・取扱い店舗
| 所在地 | 青森県八戸市沼館3丁目3番1他 |
|---|---|
| 交通 | 青い森鉄道「本八戸」駅 徒歩約24分 |
| 販売戸数 | 2戸 |
| 総戸数 | 2戸 |
| 価格 | 3,280万円(税込)・3,380万円(税込) |
| 最多価格帯 | - |
| 私道負担・道路 | 無・南西約4m幅(公道) |
| 諸費用 | 登記費用、火災保険費用、融資手数料等 |
| 間取り | 4LDK |
| 延床面積 | 109.30㎡(33.06坪)~117.17㎡(35.44坪) |
| 土地面積 | 129.36㎡(39.13坪)~134.24㎡(40..60坪) |
| 建ぺい率・容積率 | 60%・200% |
| 完成時期 | 2026年4月完成予定 |
| 入居時期 | 要相談 |
| 土地の権利形態 | 所有権 |
| 構造・工法 | 木造軸組工法/2階建て |
| 用途地域 | 工業地域 |
| 地目 | 宅地 |
| その他制限事項 | 建築基準法第22条地域 |
| その他概要 | 水道:公営上下水道、電力:東北電力、ガス:オール電化のため無し、建築確認番号:R07青森確認建青セ八戸第0375号他 |
| お問合せ |
八戸下田営業所 0120-926-209 [通話料無料]営業時間10:00~18:00※お問合せの際は「ホームページを見て」とお伝えいただくとスムーズです。 〒039-2114 青森県上北郡おいらせ町高田78-1 [宅建業免許番号]国土交通大臣(5)第6857号 (公社)青森県宅地建物取引業協会会員 東北地区不動産公正取引協議会加盟 |
| 売り主・事業主 |
タマホーム株式会社 [建設業許可番号]国土交通大臣許可(特-5)第19013号(般-5)第19013号 [宅建業免許番号]国土交通大臣(5)第6857号 |
●情報更新日:2026.04.10
●次回更新予定日:2026.05.23
※価格は物件の代金総額を表示しており、消費税が課金される場合は税込み価格です。※外観画像・内観画像・CGパース・間取り図に描かれている車両・家具・調度品等は販売価格には含まれません。※完成予想図はいずれも外構・植栽・外観等実際のものと多少異なる場合があります。※販売戸数が複数の物件につきましては、物件の特徴がすべての住戸に該当しない場合があります。※所要時間は、徒歩:道路距離80m/1分間、自転車:道路距離250m/1分間、自動車:道路距離666m/1分間を要するものとして算出した数値となります。






















社会福祉法人育生会こばとこども園.jpg)
パワーズU シンフォニープラザ店.jpg)
イオンスタイル八戸沼館.jpg)
マツモトキヨシシンフォニープラザ八戸沼館店.jpg)
ローソン-沼館三丁目店.jpg)
沼館1号公園.jpg)
八戸市立城下小学校.jpg)
八戸市立第二中学校.jpg)
本八戸駅.jpg)

