タマタウン北上しらゆり
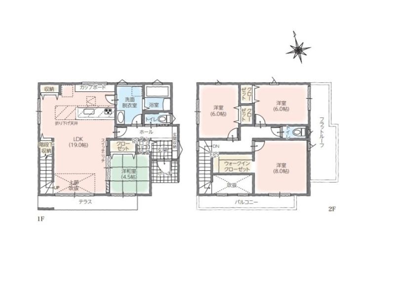
区画プラン・区画図
周辺情報
-
コンビニエンスストアファミリーマート北上町分西店約220m徒歩3分
※地図上に表示される物件の位置は付近住所に所在することを表すものであり、実際の物件所在地とは異なる場合があります。
設備・構造

【ベタ基礎】建物を底面全体で支えることで不動沈下を起こしにくい基礎工法を採用しております。計画共用期間がJASS基準で約65年の高い耐久性と強度を確保し、徹底した品質管理でユニット鉄筋を採用。

【通気工法】建物全体の換気を行う施工方法を採用。家全体の耐久性を確保しております。

【国産材】シロアリを寄せ付けにくい、耐久性に優れたヒノキ土台を採用。また、柱には高品質の国産集成材を採用。集成材は安定した強度を持ち、耐震性、耐久性に高い強い家を生み出します。

【屋根材】セラム-F FLAT(陶器瓦) シンプルモダン、ジャパニーズモダンとして現代建築に欠かせないスタンダードデザインです。

トリプルガラス樹脂フレーム、地域に対応した断熱材を使用し、高い断熱性と気密性を確保。外気温の影響を受けにくいので冬は「暖かく」、夏は「涼しい」家を実現します。

3号棟リビングイメージ

1号棟リビングイメージ
イベント情報他
| 現地案内会開催中(事前に必ずお問い合わせください) 【開催日時】毎週土曜・日曜 【ご案内時間】10:00~18:00■その他、各種ご相談もお気軽にご相談ください。住宅ローンのご相談や、資金計画についてなど不安なことを一緒に解決いたします。 |
物件概要・取扱い店舗
| 所在地 | 岩手県北上市しらゆり22-2他 |
|---|---|
| 交通 | JR北上線「柳原」駅 徒歩約27分 |
| 販売戸数 | 3戸 |
| 総戸数 | 3戸 |
| 価格 | 3,440万円(税込)~3,580万円(税込) |
| 最多価格帯 | - |
| 私道負担・道路 | 無・南約6m幅員 |
| 諸費用 | ⁻ |
| 間取り | 4LDK |
| 延床面積 | 110.13㎡(33.31坪)~122.34㎡(37.00坪) |
| 土地面積 | 178.01㎡(53.84坪)~181.19㎡(54.80坪) |
| 建ぺい率・容積率 | 60%、200% |
| 完成時期 | 2026年3月 |
| 入居時期 | 要相談 |
| 土地の権利形態 | 所有権 |
| 構造・工法 | 木造軸組工法 |
| 用途地域 | 第一種中高層住居専用地域 |
| 地目 | 宅地 |
| その他制限事項 | - |
| その他概要 | 水道:公営上下水道、電力:東北電力、ガス:オール電化の為なし、建築確認番号:第R07‐1‐1414‐0号他、その他:駐車場2台分 |
| お問合せ |
北上営業所 0120-926-484 [通話料無料]営業時間9:00~20:00 (定休日:毎週水曜日 ※詳しくはお問い合わせください)※お問合せの際は「ホームページを見て」とお伝えいただくとスムーズです。 〒024-0004 岩手県北上市村崎野16-176-3 [宅建業免許番号]国土交通大臣(5)第6857号(公社)岩手県宅地建物取引業協会会員 東北地区不動産公正取引協議会加盟 |
| 売り主・事業主 |
タマホーム株式会社 [建設業許可番号]国土交通大臣許可(特-5)第19013号(般-5)第19013号 [宅建業免許番号]国土交通大臣(5)第6857号 |
●情報更新日:2026.04.10
●次回更新予定日:2026.05.23
※価格は物件の代金総額を表示しており、消費税が課金される場合は税込み価格です。※外観画像・内観画像・CGパース・間取り図に描かれている車両・家具・調度品等は販売価格には含まれません。※完成予想図はいずれも外構・植栽・外観等実際のものと多少異なる場合があります。※販売戸数が複数の物件につきましては、物件の特徴がすべての住戸に該当しない場合があります。※所要時間は、徒歩:道路距離80m/1分間、自転車:道路距離250m/1分間、自動車:道路距離666m/1分間を要するものとして算出した数値となります。































