タマタウン馬寄
周辺情報
-
交通JR「古川」駅:徒歩約9分(約650m)
-
薬局ヨネキ薬局:徒歩約10分(約750m)
※地図上に表示される物件の位置は付近住所に所在することを表すものであり、実際の物件所在地とは異なる場合があります。
設備・構造

【長期優良住宅】長期優良住宅に求められる4つの性能基準について、当戸建分譲住宅商品は、標準仕様において、長期優良住宅の認定条件全4項目で最高等級を確保しています(住宅性能表示制度での等級を適用)。

【ベタ基礎】ベタ基礎を標準採用。コンクリートは、高耐久性と強度を確保、鉄筋は徹底管理した工場で溶接・加工されたユニット鉄筋を採用。建物をしっかり支え地震の揺れにも耐える強固な家づくりを実現しています。

【フローリング】おしゃれで落ち着いたな色合いの床。傷がつきにくいものになっています。(イメージ同等品)

【トイレ】フルオート便器洗浄やキレイ便座がついていてお掃除がラクラク。便座ヒーターオート機能付きです。(※画像はイメージです)

LOW-Eガラス(※画像はイメージです)

バルコニー(※画像はイメージです)

和室(※画像はイメージです)

クローゼット(※画像はイメージです)
その他の仕様
地盤調査済/ひのき土台/構造用耐力面材使用/省令準耐火仕様/複層ガラス/TVモニター付きインターフォン/セルフクリーニング付外壁/オール電化/IHクッキングヒーター/対面式キッチン/LDK17畳以上/シャワー付き洗面化粧台/ウォークインクローゼット
イベント情報他
| 現地案内会開催中 【開催日時】 毎週土曜日・日曜日 【ご案内時間】 10:00 ~ 17:00 |
物件概要・取扱い店舗
| 所在地 | 宮城県大崎市古川馬寄字南田10-5 |
|---|---|
| 交通 | JR「古川」駅:徒歩約8分(約650m) |
| 販売戸数 | 2戸 |
| 総戸数 | 4戸 |
| 価格 | 3,330万円(税込) |
| 最多価格帯 | 3,330万円 |
| 私道負担・道路 | 有、西6m幅 |
| 諸費用 | - |
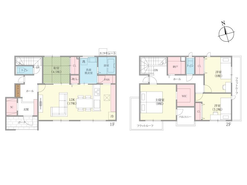
| 間取り | 4LDK |
| 延床面積 | 114.47㎡(34.62坪)・118.20㎡(35.75坪) |
| 土地面積 | 198.30㎡(59.90坪)・198.35㎡(60.00坪) |
| 建ぺい率・容積率 | 40%・60% |
| 完成時期 | 2026年3月 |
| 入居時期 | 2026年4月 |
| 土地の権利形態 | 所有権 |
| 構造・工法 | 木造2階建て |
| 用途地域 | 第一種低層住居専用地域 |
| 地目 | 宅地 |
| その他制限事項 | - |
| その他概要 | 水道:公営上下水道、浄化槽 電力:東北電力 ガス:オール電化のため無し 建築確認番号:第R07確認建築仙台都市0402号他 |
| お問合せ |
古川支店 0120-923-110 [通話料無料]営業時間9:00~20:00(定休日:毎週水曜日)※お問合せの際は「ホームページを見て」とお伝えいただくとスムーズです。 〒989-6136 宮城県大崎市古川穂波3-1-17 [宅建業免許番号]国土交通大臣(5)第006857号 (公社)宮城県宅地建物取引業協会会員 東北地区不動産公正取引協議会加盟 |
| 売り主・事業主 |
タマホーム株式会社 [建設業許可番号]国土交通大臣許可(特-5)第19013号(般-5)第19013号 [宅建業免許番号]国土交通大臣(5)第6857号 |
●情報更新日:2026.03.25
●次回更新予定日:2026.05.23
※価格は物件の代金総額を表示しており、消費税が課金される場合は税込み価格です。※外観画像・内観画像・CGパース・間取り図に描かれている車両・家具・調度品等は販売価格には含まれません。※完成予想図はいずれも外構・植栽・外観等実際のものと多少異なる場合があります。※販売戸数が複数の物件につきましては、物件の特徴がすべての住戸に該当しない場合があります。※所要時間は、徒歩:道路距離80m/1分間、自転車:道路距離250m/1分間、自動車:道路距離666m/1分間を要するものとして算出した数値となります。





























