タマタウン山形泉町
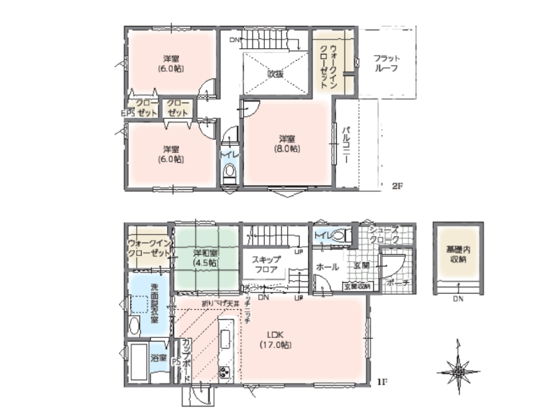
区画プラン・区画図
設備・構造
イベント情報他
| 現地案内開催中(事前に必ずお問い合わせください) 【開催日時】毎週土曜・日曜 【ご案内時間】10:00~18:00■ご案内方法 お客様の専属担当スタッフがご自宅までの送迎や最寄り駅までの送迎も行います。また、弊社までご来店いただきご案内も可能です。]■ご案内ご予約手順 弊社までご連絡を事前に頂けるとお問い合わせ頂いた物件資料も含め、物件探しの条件を教えて頂ければ併せて条件に合う物件資料をお持ちいたします。 |
物件概要・取扱い店舗
| 所在地 | 山形県山形市泉町94-1、94-2 |
|---|---|
| 交通 | JR奥羽本線「羽前千歳」駅 徒歩約20分(約1,600m) |
| 販売戸数 | 2戸 |
| 総戸数 | 2戸 |
| 価格 | 3,980万円(税込)・4,080万円(税込) |
| 最多価格帯 | - |
| 私道負担・道路 | 無・北側幅員約4.0m、東側幅員約4.2m |
| 諸費用 | - |
| 間取り | 4LDK |
| 延床面積 | 114.68㎡(34.68坪)・117.16㎡(35.44坪) |
| 土地面積 | 194.83㎡(58.93坪)・194.84㎡(58.93坪) |
| 建ぺい率・容積率 | 60%・200% |
| 完成時期 | 2026年6月 |
| 入居時期 | 2026年7月 |
| 土地の権利形態 | 所有権 |
| 構造・工法 | 木造軸組工法/2階建て |
| 用途地域 | 第一種住居地域 |
| 地目 | 宅地 |
| その他制限事項 | - |
| その他概要 | 水道:公共上下水道、電力:東北電力(オール電化)、建築確認番号:第東日本26-02709号他 |
| お問合せ |
山形店 0120-926-786 [通話料無料]営業時間9:00~20:00※お問合せの際は「ホームページを見て」とお伝えいただくとスムーズです。 〒990-0886 山形県山形市嶋南3丁目7-13 [宅建業免許番号]国土交通大臣(5)第6857号 (公社)山形県宅地他店の取引業協会会員 (公社)東北地区不動産構成取引協議会加盟 |
| 売り主・事業主 |
タマホーム株式会社 [建設業許可番号]国土交通大臣許可(特-5)第19013号(般-5)第19013号 [宅建業免許番号]国土交通大臣(5)第6857号 |
●情報更新日:2026.04.10
●次回更新予定日:2026.05.23
山形県の物件一覧
※価格は物件の代金総額を表示しており、消費税が課金される場合は税込み価格です。※外観画像・内観画像・CGパース・間取り図に描かれている車両・家具・調度品等は販売価格には含まれません。※完成予想図はいずれも外構・植栽・外観等実際のものと多少異なる場合があります。※販売戸数が複数の物件につきましては、物件の特徴がすべての住戸に該当しない場合があります。※所要時間は、徒歩:道路距離80m/1分間、自転車:道路距離250m/1分間、自動車:道路距離666m/1分間を要するものとして算出した数値となります。






















