タマタウン一色中部小
区画プラン・区画図
周辺情報
-
中学校一色中学校:徒歩約29分(約2,300m)
※地図上に表示される物件の位置は付近住所に所在することを表すものであり、実際の物件所在地とは異なる場合があります。
設備・構造

3号棟 ■下がり天井が印象的なキッチン ■ペニンシュラキッチンを採用 ■開放感のある明るいキッチンで、家族との会話も弾みます (※家具はイメージです)

食洗器 ■食器洗いの時間が家族団欒の時間に変わります タッチレス蛇口一体型浄水器 ■ストレスフリーな操作性。 ■毎日忙しいあなたをスピーディにサポート。

スイッチニッチ ■スイッチをスッキリまとめるスイッチニッチを採用 ■上段、下段で奥行を変えているので、下段はティッシュを置いたり、小物を飾ったりするのも良いですね。

ユニットバス ■浴室乾燥暖房機付き ■魔法びん浴槽は4時間以上経っても温度低下はわずか2.5℃ ■断熱防水パンのフタでさらに保温が長持ち

シューズクローク ■ベビーカー、アウトドアグッズなどもたっぷり収納出来ます

スマートコントロールキー ■車の様にタグキーで施解錠可能。 ■雨の日や両手に荷物を持っていてもラクラク施開錠

熱交換型 全館空気清浄システム ■冷暖房のロスが少ない熱交換型。 ■花粉・PM2.5を除去して1日に12回家の中の空気を入れ替えます

ベタ基礎 ■建物を底面全体で支えることで不動沈下を起こしにくいベタ基礎を標準採用 ■コンクリートは計画共用期間が約65年(JASS5基準)の高い耐久性と強度を確保
その他の仕様
地盤調査済/ペニンシュラキッチン/浴室乾燥機/LDK17帖以上/1階天井高2700m/シャワー付洗面化粧台/全窓「樹脂ペアガラス」※一部例外あり/温水洗浄便座/TVモニタ付インターホン/ウォークインクローゼット/オール電化/食器洗浄乾燥機/一体型浄水器/小屋裏収納(3号棟)
イベント情報他
| 【タマタウン一色中部小 現地見学会】 ~何でもお気軽にご相談ください~ 「今の家賃と比べてどのくらい変わるの?」・「頭金が無くても買えるの?」・「金利はどのくらい?どこの金融機関を利用するのがいいの?」 ご内覧等ご希望の方は現地に人がおりませんので事前のご連絡をお願い致します。 【開催日時】 毎週土日祝 【ご案内時間】 9:00~20:00 ※平日もご案内ご相談可能です。 ご案内ご予約はタマホーム西尾店 ☎0120-951-788 まで♪ |
物件概要・取扱い店舗
| 所在地 | 愛知県西尾市一色町一色東荒子54番23、54番24 |
|---|---|
| 交通 | 名鉄西尾線「福地」駅 徒歩約47分 |
| 販売戸数 | 1戸 |
| 総戸数 | 3戸 |
| 価格 | 2,980万円(税込) |
| 最多価格帯 | - |
| 私道負担・道路 | 無・南4m幅 |
| 諸費用 | - |
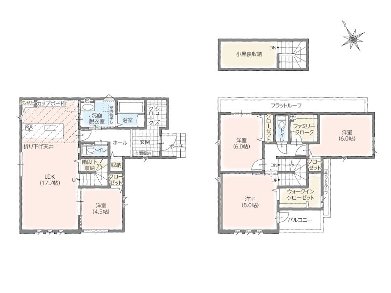
| 間取り | 4LDK+S |
| 延床面積 | 112.61㎡(34.06坪) |
| 土地面積 | 141.31㎡(42.74坪) |
| 建ぺい率・容積率 | 60%・100% |
| 完成時期 | 2025年10月 |
| 入居時期 | 要相談 |
| 土地の権利形態 | 所有権 |
| 構造・工法 | 木造軸組工法/2階建 |
| 用途地域 | 第一種低層住居専用地域 |
| 地目 | 宅地 |
| その他制限事項 | - |
| その他概要 | 水道:公営水道・本下水、電力:中部電力、ガス:オール電化の為、なし、建築確認番号:第R07確認建築CI東海A70106号 |
| お問合せ |
西尾店 0120-951-788 [通話料無料]営業時間9:00~20:00(定休日:毎週水曜日および第2.3火曜日)※お問合せの際は「ホームページを見て」とお伝えいただくとスムーズです。 〒445-0851 愛知県西尾市住吉町7丁目5番1 [宅建業免許番号]国土交通大臣(5)第6857号(公社)愛知県宅地建物取引業協会加盟 東海不動産公正取引協議会加盟 |
| 売り主・事業主 |
タマホーム株式会社 [建設業許可番号]国土交通大臣許可(特-5)第19013号(般-5)第19013号 [宅建業免許番号]国土交通大臣(5)第6857号 |
●情報更新日:2025.12.23
●次回更新予定日:2026.02.16
※価格は物件の代金総額を表示しており、消費税が課金される場合は税込み価格です。※外観画像・内観画像・CGパース・間取り図に描かれている車両・家具・調度品等は販売価格には含まれません。※完成予想図はいずれも外構・植栽・外観等実際のものと多少異なる場合があります。※販売戸数が複数の物件につきましては、物件の特徴がすべての住戸に該当しない場合があります。※所要時間は、徒歩:道路距離80m/1分間、自転車:道路距離250m/1分間、自動車:道路距離666m/1分間を要するものとして算出した数値となります。



























