タマタウン一色中部小Ⅱ
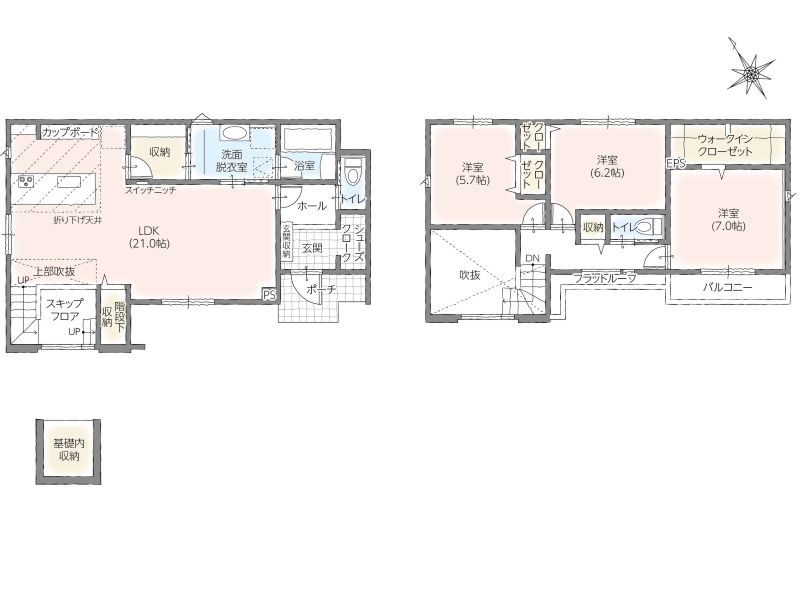
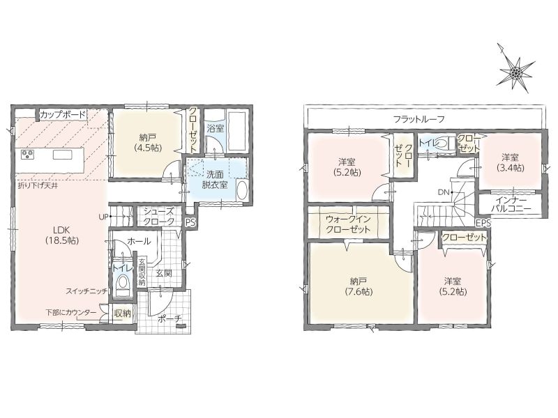
区画プラン・区画図
周辺情報
-
中学校一色中学校 自転車約22分(約4,300m)
-
施設一色児童センター 徒歩約15分(約1,200m)
※地図上に表示される物件の位置は付近住所に所在することを表すものであり、実際の物件所在地とは異なる場合があります。
設備・構造

【土台】シロアリを寄せ付けにくい、耐久性に優れたヒノキ土台を採用。また、柱には高品質の集成材を採用。集成材は安定した強度を持ち、耐震性、耐久性に高い強い家を生み出します。

【基礎】ベタ基礎を標準採用。コンクリートは、高耐久性と強度を確保、鉄筋は徹底管理した工場で溶接・加工されたユニット鉄筋を採用。建物をしっかり支え地震の揺れにも耐える強固な家づくりを実現しています。

【換気】室内の汚れた空気を排出し、新鮮な空気を取り入れる「24時間換気システム」を採用。排出する空気の温度を利用し、取り込む空気の温度を適温にコントロールするので、冷暖房のランニングコスト削減!

【IH】電気を使って鍋自体を直接加熱するIHクッキングヒーター。不完全燃焼や立ち消えの心配もないので安心です。水蒸気の発生や油の飛び散りも少ないため、室内をよりきれいに保つことができます。

【耐震等級3】最高等級の耐震等級3を取得!建築基準法で定める1.5倍の地震力でも倒壊・崩壊しないレベルです。

【長期優良住宅】求められる4つの性能基準について、当分譲戸建商品は、標準仕様において、長期優良住宅の認定条件全4項目で最高等級を確保しています(住宅性能表示制度での等級を適用)。
その他の仕様
地盤調査済/ペニンシュラキッチン/カップボード/食器洗浄乾燥機/浴室乾燥機/LDK17帖以上/1階天井高2700m/シャワー付洗面化粧台/全窓「樹脂ペアガラス」※一部例外あり/温水洗浄便座/TVモニタ付インターホン/ウォークインクローゼット/オール電化/一体型浄水器/スイッチニッチ/スキップフロア&基礎内収納(1号棟)
イベント情報他
| 【タマタウン一色中部小Ⅱ 現地見学会】 ~何でもお気軽にご相談ください~ 「今の家賃と比べてどのくらい変わるの?」 ・「頭金が無くても買えるの?」 ・「金利はどのくらい?どこの金融機関を利用するのがいいの?」 ご内覧等ご希望の方は現地に人がおりませんので事前のご連絡をお願い致します。 【開催日時】 毎週土日祝 【ご案内時間】 9:00~20:00 ※平日もご案内ご相談可能です。 ご案内ご予約はタマホーム西尾店 ☎0120-951-788 まで♪ |
物件概要・取扱い店舗
| 所在地 | 愛知県西尾市一色町一色東荒子54番1他 |
|---|---|
| 交通 | 名鉄西尾線「福地」駅 車約8分 |
| 販売戸数 | 2戸 |
| 総戸数 | 3戸 |
| 価格 | 3,280万円(税込) |
| 最多価格帯 | - |
| 私道負担・道路 | 無、南4m幅(1号棟)、東4m幅(3号棟) |
| 諸費用 | - |
| 間取り | 3LDK・3LDK+2S |
| 延床面積 | 111.78㎡(33.80坪)~113.14㎡(34.22坪) |
| 土地面積 | 152.14㎡(46.02坪)~169.05㎡(51.13坪) |
| 建ぺい率・容積率 | 60%・100% |
| 完成時期 | 2026年5月 |
| 入居時期 | 要相談 |
| 土地の権利形態 | 所有権 |
| 構造・工法 | 木造2階建て(軸組工法) |
| 用途地域 | 第一種低層住居専用地域 |
| 地目 | 宅地 |
| その他制限事項 | - |
| その他概要 | 水道:公営水道、本下水 電力:中部電力 ガス:オール電化の為無し 建築確認番号:第R07確認建築CI東海A70621号他 その他:エネルギー消費性能:再エネなし(★★★★削減率30%達成) 断熱性能:6 |
| お問合せ |
西尾店 0120-951-788 [通話料無料]営業時間9:00~20:00(定休日:毎週水曜日および第2.3火曜日)※お問合せの際は「ホームページを見て」とお伝えいただくとスムーズです。 〒445-0851 愛知県西尾市住吉町7丁目5番1 [宅建業免許番号]国土交通大臣(5)第6857号(公社)愛知県宅地建物取引業協会加盟 東海不動産公正取引協議会加盟 |
| 売り主・事業主 |
タマホーム株式会社 [建設業許可番号]国土交通大臣許可(特-5)第19013号(般-5)第19013号 [宅建業免許番号]国土交通大臣(5)第6857号 |
●情報更新日:2026.04.17
●次回更新予定日:2026.05.23
※価格は物件の代金総額を表示しており、消費税が課金される場合は税込み価格です。※外観画像・内観画像・CGパース・間取り図に描かれている車両・家具・調度品等は販売価格には含まれません。※完成予想図はいずれも外構・植栽・外観等実際のものと多少異なる場合があります。※販売戸数が複数の物件につきましては、物件の特徴がすべての住戸に該当しない場合があります。※所要時間は、徒歩:道路距離80m/1分間、自転車:道路距離250m/1分間、自動車:道路距離666m/1分間を要するものとして算出した数値となります。

















.jpg)











