タマタウン西尾住崎
区画プラン・区画図

土地に合わせて一邸一邸設計した「オンリーワン住宅」 ■全棟1階2.7mの高天井、回遊動線等高品質戸建分譲住宅 ■建築士が作った使いやすい動線♪

駐車場は3台駐車可能。(車種によります) 周辺には公園、スーパー、ドラッグストアがあり、買い物、利便性の高い好立地物件。 日々の暮らしを豊かにする戸建分譲住宅♪

1号地外観

【1号棟】間取り:4LDK+S/土地面積:126.93㎡/建物面積:103.91㎡

2号地外観

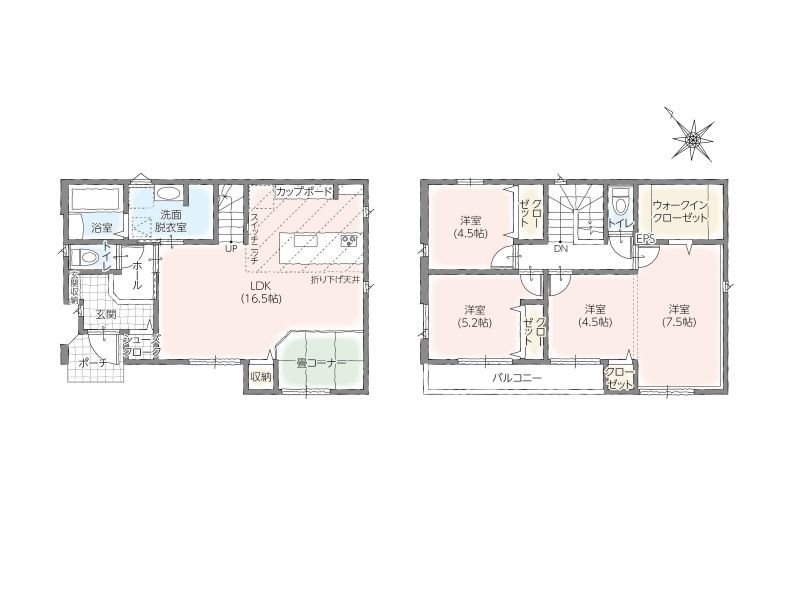
【2号棟】間取り:3LDK+S/土地面積:124.66㎡/建物面積:105.16㎡

3号地外観

【3号棟】間取り:4LDK+S/土地面積:139.97㎡/建物面積:103.91㎡

4号地外観

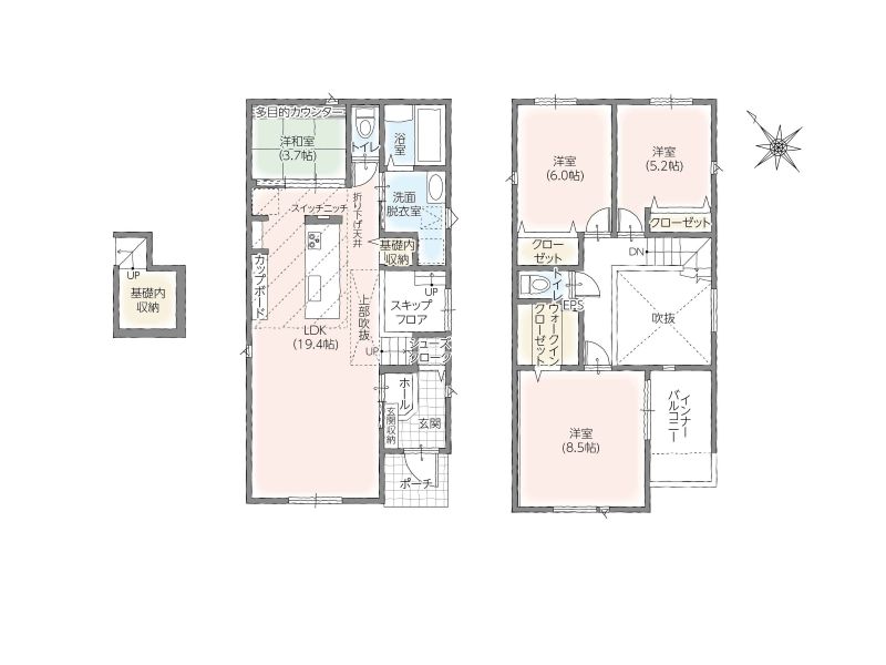
【4号棟】間取り:4LDK+S/土地面積:140.00㎡/建物面積:113.11㎡
周辺情報
-
公園住崎1号公園 徒歩約4分(約300m)
※地図上に表示される物件の位置は付近住所に所在することを表すものであり、実際の物件所在地とは異なる場合があります。
設備・構造

3号棟 LDK ■各区画18~20帖の広々としたLDK ■リビングを見渡せる対面式キッチンだからお子様がいても安心 ※家具はAIによるイメージです。

1号棟 キッチン ■下がり天井が印象的なキッチン ■ペニンシュラキッチンを採用 ■開放感のある明るいキッチンで、家族との会話も弾みます。 ■据え付け型の食器収納を全棟設置。

4号棟 LDK・スキップフロア ■LDKを見渡せる位置にはスキップフロアを配置。 ■お子様のスタディコーナーや、ワークスペースに。 ※家具はAIによるイメージです。

4号棟 主寝室 ■ゆったりとした広さを確保した癒しの主寝室。 ■広々ウォークインクローゼット設置で収納力も十分 ※家具はAIによるイメージです。

4号棟 主寝室 ■ゆったりとした広さを確保した癒しの主寝室。 ■広々ウォークインクローゼット設置で収納力も十分 ※家具はAIによるイメージです。

4号棟 子供部屋 ■記念日にはアクセントクロスに飾付けをするのもオススメです ※家具はAIによるイメージです。

【基礎】ベタ基礎を標準採用。コンクリートは、高耐久性と強度を確保、鉄筋は徹底管理した工場で溶接・加工されたユニット鉄筋を採用。建物をしっかり支え地震の揺れにも耐える強固な家づくりを実現しています。

【換気】室内の汚れた空気を排出し、新鮮な空気を取り入れる「24時間換気システム」を採用。排出する空気の温度を利用し、取り込む空気の温度を適温にコントロールするので、冷暖房のランニングコスト削減!
その他の仕様
地盤調査済/ペニンシュラキッチン/カップボード/浴室乾燥機/1階天井高2,700m/シャワー付洗面化粧台/全窓「樹脂ペアガラス」※一部例外あり/温水洗浄便座/TVモニタ付インターホン/ウォークインクローゼット/オール電化/食器洗浄乾燥機/一体型浄水器/スイッチニッチ/スキップフロア&基礎内収納(4号棟)
イベント情報他
| 【タマタウン西尾住崎】 現地見学会~何でもお気軽にご相談ください~ 「今の家賃と比べてどのくらい変わるの?」 ・「頭金が無くても買えるの?」 ・「金利はどのくらい?どこの金融機関を利用するのがいいの?」 ご内覧等ご希望の方は現地に人がおりませんので事前のご連絡をお願い致します。 【開催日時】 毎週土日祝 【ご案内時間】 9:00~20:00 ※平日もご案内ご相談可能です。 ご案内ご予約はタマホーム西尾店 0120-951-788 まで♪ |
物件概要・取扱い店舗
| 所在地 | 愛知県西尾市住崎五丁目52番1他 |
|---|---|
| 交通 | くるりんバス「住崎」バス停 徒歩約8分 |
| 販売戸数 | 4戸 |
| 総戸数 | 4戸 |
| 価格 | 3,780万円(税込)~3,980万円(税込) |
| 最多価格帯 | - |
| 私道負担・道路 | 無・南西6m幅 |
| 諸費用 | - |
| 間取り | 3LDK+S~4LDK+S |
| 延床面積 | 103.91㎡(31.43坪)~113.11㎡(34.21坪) |
| 土地面積 | 124.66㎡(37.70坪)~140.00㎡(42.34坪) |
| 建ぺい率・容積率 | 60%・150% |
| 完成時期 | 2026年5月 |
| 入居時期 | 要相談 |
| 土地の権利形態 | 所有権 |
| 構造・工法 | 木造2階建て(軸組工法) |
| 用途地域 | 第一種中高層専用地域 |
| 地目 | 宅地 |
| その他制限事項 | - |
| その他概要 | 水道:公営水道、本下水 電気:中部電力 ガス:オール電化の為無し 建築確認番号:第R07確認建築CI東海A70528号他 エネルギー消費性能:再エネなし(★★★★削減率30%達成) 断熱性能:6 |
| お問合せ |
西尾店 0120-951-788 [通話料無料]営業時間9:00~20:00(定休日:毎週水曜日および第2.3火曜日)※お問合せの際は「ホームページを見た」とお伝えいただくとスムーズです。 〒445-0851 愛知県西尾市住吉町7丁目5番1 [宅建業免許番号]国土交通大臣(5)第6857号(公社)愛知県宅地建物取引業協会加盟 東海不動産公正取引協議会加盟 |
| 売り主・事業主 |
タマホーム株式会社 [建設業許可番号]国土交通大臣許可(特-5)第19013号(般-5)第19013号 [宅建業免許番号]国土交通大臣(5)第6857号 |
●情報更新日:2026.05.15
●次回更新予定日:2026.06.20
※価格は物件の代金総額を表示しており、消費税が課金される場合は税込み価格です。※外観画像・内観画像・CGパース・間取り図に描かれている車両・家具・調度品等は販売価格には含まれません。※完成予想図はいずれも外構・植栽・外観等実際のものと多少異なる場合があります。※販売戸数が複数の物件につきましては、物件の特徴がすべての住戸に該当しない場合があります。※所要時間は、徒歩:道路距離80m/1分間、自転車:道路距離200m/1分間、自動車:道路距離400m/1分間を要するものとして算出した数値となります。
























