タマタウン太田川駅Ⅱ
設備・構造

【地盤調査】スウェーデン式サウンディング試験機による地盤調査を実施。強い家づくりの基本は、建物をしっかりと支える地盤です。当分譲地は、着工前に地盤を調査しています。

【ベタ基礎】ベタ基礎を標準採用。コンクリートは、高耐久性と強度を確保、鉄筋は徹底管理した工場で溶接・加工されたユニット鉄筋を採用。建物をしっかり支え地震の揺れにも耐える強固な家づくりを実現しています。

【土台、集成材】耐久性に優れた土台を採用。また、柱には高品質の集成材を採用。集成材は安定した強度を持ち、耐震性、耐久性に高い強い家を生み出します。

【通気工法】外壁材と構造躯体の間に外気が流れる通気層をつくることで、湿気を外部に放出。壁内の通気層は屋根裏まで通っており、構造体や断熱材を腐食やカビから守り、建物の耐久性を向上させます。

【剛床工法】1階と2階の床には、剛床工法を採用。構造用合板を土台や梁に直接留めつけて、床全体を一体化。地震の横揺れにも効果を発揮します。
イベント情報他
| ~何でもお気軽にご相談ください~ ・「今の家賃と比べてどのくらい変わるの?」 ・「頭金が無くても買えるの?」 ・「金利はどのくらい?どこの金融機関を利用するのがいいの?」■現地ご案内会開催 【開催日時】 毎週土曜・日曜 10:00~17:00ご内覧等ご希望の方はお手数ですが事前のご連絡をお願いいたします。平日及び夜もご案内可能です!!お気軽にお問い合わせください! |
物件概要・取扱い店舗
| 所在地 | 愛知県東海市太田町天尾崎1017-6 |
|---|---|
| 交通 | 名鉄常滑線「太田川」駅 徒歩約6分 |
| 販売戸数 | 1戸 |
| 総戸数 | 4戸 |
| 価格 | 4,970万円(税込) |
| 最多価格帯 | - |
| 私道負担・道路 | 私道負担:無 ・ 道路:北側6m |
| 諸費用 | 登記費用・火災保険料・融資手数料等 |
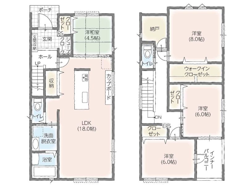
| 間取り | 4LDK |
| 延床面積 | 114.29㎡(34.57坪) |
| 土地面積 | 143.70㎡(43.46坪) |
| 建ぺい率・容積率 | 60%・200% |
| 完成時期 | 2025年11月 |
| 入居時期 | 要相談 |
| 土地の権利形態 | 所有権 |
| 構造・工法 | 木造2階建て |
| 用途地域 | 第1種住居地域 |
| 地目 | 宅地 |
| その他制限事項 | - |
| その他概要 | 水道:公営上水道、下水道 電力:中部電力 ガス:都市ガス 建築確認番号:第RO7確認建築CI東海A00671号他 |
| お問合せ |
名古屋支店 0120-923-450 [通話料無料]営業時間9:00~20:00(定休日:毎週水曜日)※お問合せの際は「ホームページを見て」とお伝えいただくとスムーズです。 〒459-8001 愛知県名古屋市緑区大高町寅新田18番 [宅建業免許番号]国土交通大臣(5)第6857号 [建設業許可番号]国土交通大臣許可(特-5)第19013号(般-5)第19013号 |
| 売り主・事業主 |
タマホーム株式会社 [建設業許可番号]国土交通大臣許可(特-5)第19013号(般-5)第19013号 [宅建業免許番号]国土交通大臣(5)第6857号 |
●情報更新日:2026.03.30
●次回更新予定日:2026.04.22
※価格は物件の代金総額を表示しており、消費税が課金される場合は税込み価格です。※外観画像・内観画像・CGパース・間取り図に描かれている車両・家具・調度品等は販売価格には含まれません。※完成予想図はいずれも外構・植栽・外観等実際のものと多少異なる場合があります。※販売戸数が複数の物件につきましては、物件の特徴がすべての住戸に該当しない場合があります。※所要時間は、徒歩:道路距離80m/1分間、自転車:道路距離250m/1分間、自動車:道路距離666m/1分間を要するものとして算出した数値となります。





















