タマタウン武豊梨子ノ木
設備・構造

開放感のあるペニンシュラキッチンを採用。食器洗浄乾燥機付きで家事負担を軽減します。(弊社施工例のイメージ写真となります。)

保温浴槽タイプのユニットバスを採用。家計にも優しい仕様となっております。(弊社施工例のイメージ写真となります。)

家中のいたるところにアクセントクロスを採用。高級感やオシャレ感が一味違います!(弊社施工例のイメージ写真となります。)

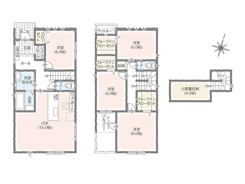
1、2号棟は大量の荷物が片付け可能な小屋裏収納付きです。(弊社施工例のイメージ写真となります。)

大容量のウォークインクローゼットにより、収納のお悩みが解決出来ます。(弊社施工例のイメージ写真となります。)

鉄筋入りコンクリートベタ基礎を採用。地面からの湿気を防ぎ、シロアリの侵入も防ぎます。
.jpg)
省令準耐火構造を採用。万が一出火しても燃え広がりにくい構造となっており、火災保険の割引も適用されます。
イベント情報他
現地案内会開催中 【開催日時】 毎週土曜日・日曜日 【ご案内時間】 9:00~18:00 平日や夜の時間帯でもご対応可能です。 事前に必ずご予約ください。
物件概要・取扱い店舗
| 所在地 | 愛知県武豊町梨子ノ木二丁目158番8 他 |
|---|---|
| 交通 | 名鉄河和線「上ゲ」駅 徒歩約19分 |
| 販売戸数 | 3戸 |
| 総戸数 | 4戸 |
| 価格 | 3,480万円(税込)~3,680万円(税込) |
| 最多価格帯 | - |
| 私道負担・道路 | 北側公道 約6m幅 私道負担 無 |
| 諸費用 | - |
| 間取り | 4LDK |
| 延床面積 | 107.66㎡(32.56坪)~112.63㎡(34.07坪) |
| 土地面積 | 139.00㎡(42.04坪)~139.02㎡(42.05坪) |
| 建ぺい率・容積率 | 60%・150% |
| 完成時期 | 2025年3月予定 |
| 入居時期 | 2025年3月予定 |
| 土地の権利形態 | 所有権 |
| 構造・工法 | 木造2階建て |
| 用途地域 | 第一種中高層住居専用地域 |
| 地目 | 宅地 |
| その他制限事項 | - |
| その他概要 | 水道:上下水道、電力:中部電力、ガス:オール電化のためなし、建築確認番号:R06確認建築CI東海A01096号(1号棟) 他 |
| お問合せ |
武豊店 0120-985-087 [通話料無料]営業時間9:00~20:00(定休日:毎週水曜日)※お問合せの際は「ホームページを見て」とお伝えいただくとスムーズです。 愛知県知多郡武豊町祠峯1-89 [宅建業免許番号]国土交通大臣(5)第6857号(公社)愛知県宅地建物取引業協会会員 |
| 売り主・事業主 |
タマホーム株式会社 [建設業許可番号]国土交通大臣許可(特-5)第19013号(般-5)第19013号 [宅建業免許番号]国土交通大臣(5)第6857号 |
●情報更新日:2025.6.19
●次回更新予定日:2026.03.19
※価格は物件の代金総額を表示しており、消費税が課金される場合は税込み価格です。※外観画像・内観画像・CGパース・間取り図に描かれている車両・家具・調度品等は販売価格には含まれません。※完成予想図はいずれも外構・植栽・外観等実際のものと多少異なる場合があります。※販売戸数が複数の物件につきましては、物件の特徴がすべての住戸に該当しない場合があります。※所要時間は、徒歩:道路距離80m/1分間、自転車:道路距離250m/1分間、自動車:道路距離666m/1分間を要するものとして算出した数値となります。




















