タマタウン豊橋牛川通II
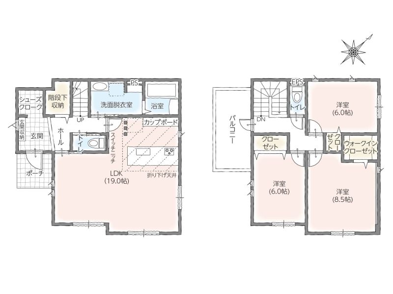
区画プラン・区画図
周辺情報
※地図上に表示される物件の位置は付近住所に所在することを表すものであり、実際の物件所在地とは異なる場合があります。
設備・構造

【スキップフロア】 階段スペースには中2階にスキップフロアを配置。お子様の勉強を見ながら会話もできコミュニケーションが広がる憩いの場です。この下には大きな階段下収納もあります。※イメージ写真

【キッチン】 大人気のペニンシュラキッチン。コンロはIHクッキングヒーターを採用。忙しい奥様の味方「食器洗浄乾燥機」もついて冬の手荒れ対策にもバッチリです。※イメージ写真

【耐震等級3】耐震等級は最高等級の「等級3」。建築基準法の1.5倍の地震力でも倒壊・崩壊しないレベルです。住む人の命を守るだけでななく地震保険も半額になり、家計に優しい性能です。

【省令準耐火構造】火災に強い省令準耐火仕様。住む人の命を守るだけではなく、火災保険料も鉄骨住宅と同じ金額になり、家計に優しい性能です。

【ユニットバス】シンプルで使いやすいユニットバスを採用。エコベンチ浴槽は小さいお子様が座ったり、大人も半身浴などゆったりした時間を楽しめます。
イベント情報他
| 完成前現場案内会開催(事前にお問い合わせください) 【開催日時】毎週土日 【ご案内時間】10:00~17:00◆ご案内方法◆ 完成予定現場と完成予定建物について担当スタッフがご案内させていただきます。◆その他、各種ご相談もお気軽にお問い合わせください。 安心できるファイナンシャルプランナーによる資金計画や住宅ローンのご相談、税金関係もお任せください。 |
物件概要・取扱い店舗
| 所在地 | 愛知県豊橋市牛川通5丁目4番8他 |
|---|---|
| 交通 | 豊鉄バス「牛川バス停」 徒歩約15分 |
| 販売戸数 | 3戸 |
| 総戸数 | 4戸 |
| 価格 | 3,780万円(税込)~3,980万円(税込) |
| 最多価格帯 | - |
| 私道負担・道路 | 私道負担:無 ・ 道路:5.8m |
| 諸費用 | - |
| 間取り | 4LDK(1号棟・4号棟)、3LDK(2号棟) |
| 延床面積 | 101.84㎡(30.80坪)~118.82㎡(35.94坪) |
| 土地面積 | 139.87㎡(42.31坪)~153.41㎡(46.40坪) |
| 建ぺい率・容積率 | 60%・200% |
| 完成時期 | 2026年2月 |
| 入居時期 | 引渡/要相談 |
| 土地の権利形態 | 所有権 |
| 構造・工法 | 木造二階建て |
| 用途地域 | 市街化区域 |
| 地目 | 宅地 |
| その他制限事項 | - |
| その他概要 | 水道:公共下水 電力:中部電力 ガス:都市ガス 建築確認番号:第R07確認建築CI東海A70432号 |
| お問合せ |
豊橋営業所 0120-923-360 [通話料無料]営業時間9:00~20:00※お問合せの際は「ホームページを見て」とお伝えいただくとスムーズです。 〒440-0086 愛知県豊橋市下地町字新道48 [宅建業免許番号]国土交通大臣(5)第6857号(公社)愛知県宅地建物取引業協会 東海不動産公正取引協議会加盟 |
| 売り主・事業主 |
タマホーム株式会社 [建設業許可番号]国土交通大臣許可(特-5)第19013号(般-5)第19013号 [宅建業免許番号]国土交通大臣(5)第6857号 |
●情報更新日:2026.02.19
●次回更新予定日:2026.03.19
※価格は物件の代金総額を表示しており、消費税が課金される場合は税込み価格です。※外観画像・内観画像・CGパース・間取り図に描かれている車両・家具・調度品等は販売価格には含まれません。※完成予想図はいずれも外構・植栽・外観等実際のものと多少異なる場合があります。※販売戸数が複数の物件につきましては、物件の特徴がすべての住戸に該当しない場合があります。※所要時間は、徒歩:道路距離80m/1分間、自転車:道路距離250m/1分間、自動車:道路距離666m/1分間を要するものとして算出した数値となります。


















.jpg)
.jpg)
.jpg)
.jpg)








