タマタウン豊川三蔵子
設備・構造
イベント情報他
| ■ファイナンシャルプランナーに客観的に家計を判断してもらう事で、購入するお家の価格がご自身のご予算にあっているかを適切に判断いただけます。 ■年収だけを見るのではなく、家族構成やお子様を公立もしくは私立の高校に通わせるのか、大学進学への資金も必要か、旅行の頻度はどうか、車の買い替えはいつ頃なのかなど、それぞれの家庭に合わせたプランニングをしていきます。 |
物件概要・取扱い店舗
| 所在地 | 愛知県豊川市三蔵子町西浦76-9 |
|---|---|
| 交通 | 豊川市コミュニティーバス「豊川大崎」 徒歩約8分(約640m) |
| 販売戸数 | 4戸 |
| 総戸数 | 4戸 |
| 価格 | 3,980万円(税込)~4,180万円(税込) |
| 最多価格帯 | - |
| 私道負担・道路 | 無・西6m幅 |
| 諸費用 | - |
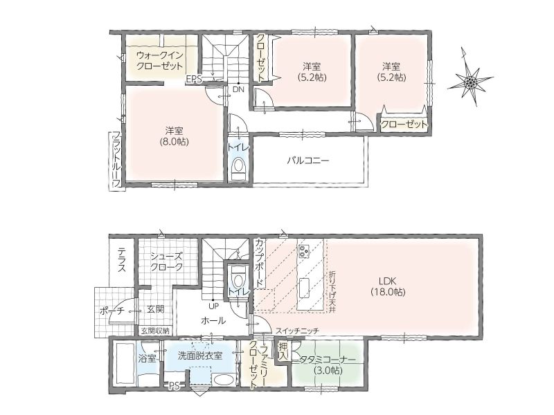
| 間取り | 3LDK・4LDK |
| 延床面積 | 109.29㎡(33.06坪)~119.65㎡(36.19坪) |
| 土地面積 | 157.66㎡(47.69坪)~157.75㎡(47.71坪) |
| 建ぺい率・容積率 | 60%・200% |
| 完成時期 | 2026年5月 |
| 入居時期 | 要相談 |
| 土地の権利形態 | 所有権 |
| 構造・工法 | 木造軸組工法/2階建て |
| 用途地域 | 第一種中高層住居専用地域 |
| 地目 | 宅地 |
| その他制限事項 | - |
| その他概要 | 水道:公営上下水道、電力:中部電力、ガス:ー、建築確認番号:第R07確認建築CI東海A70645号他、その他:駐車場3台有 |
| お問合せ |
豊橋店 0120-923-360 [通話料無料]営業時間9:00~20:00※お問合せの際は「ホームページを見て」とお伝えいただくとスムーズです。 〒440-0086 愛知県豊橋市下地町字新道48 [宅建業免許番号]国土交通大臣(5)第6857号(公社)愛知県宅地建物取引業協会 東海不動産公正取引協議会加盟 |
| 売り主・事業主 |
タマホーム株式会社 [建設業許可番号]国土交通大臣許可(特-5)第19013号(般-5)第19013号 [宅建業免許番号]国土交通大臣(5)第6857号 |
●情報更新日:2026.04.07
●次回更新予定日:2026.05.23
愛知県の物件一覧
※価格は物件の代金総額を表示しており、消費税が課金される場合は税込み価格です。※外観画像・内観画像・CGパース・間取り図に描かれている車両・家具・調度品等は販売価格には含まれません。※完成予想図はいずれも外構・植栽・外観等実際のものと多少異なる場合があります。※販売戸数が複数の物件につきましては、物件の特徴がすべての住戸に該当しない場合があります。※所要時間は、徒歩:道路距離80m/1分間、自転車:道路距離250m/1分間、自動車:道路距離666m/1分間を要するものとして算出した数値となります。















-1.jpg)
-1-300x225.jpg)






