タマタウン伊那小
区画プラン・区画図

【街並み完成イメージ】シックなブラックを基調とした外観は、洗練された大人の佇まい。モダンなフォルムと質感のある外壁材が調和し、年月を経ても色褪せない美しさを実現しました。

【区画図】

【1号地 外観パース】

【1号地 間取り】水廻りを集約した家事ラク動線。会話が弾むペニンシュラキッチンや洋和室、大容量ウォークインクローゼットが魅力な間取りです。

【2号地 外観パース】

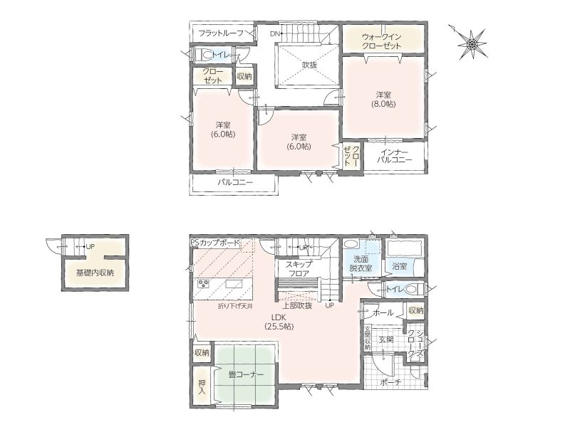
【2号地 間取り】ペニンシュラキッチンやLDKに隣接した畳コーナーで家族との会話が弾むこと間違いなし。ウォークインクローゼット、階段下収納、シューズクロークなど、大容量収納も魅力な間取りです。

【3号地 外観パース】

【3号地 間取り】広々とした洗面脱衣室、ウォークインクローゼット、階段下収納、シューズクロークなど、大容量収納が魅力な間取りです。
周辺情報
※地図上に表示される物件の位置は付近住所に所在することを表すものであり、実際の物件所在地とは異なる場合があります。
設備・構造

【ペニンシュラキッチン】 デザイン性と機能性を兼ね備えた、使いやすいキッチンです。(※画像はイメージです)

【バルコニー】 戸建ならではの自由な使い勝手が魅力。周囲の目を気にせず洗濯物を干したり、家事の合間にお茶を楽しんだりと、家族みんなが満足できる開放的なスペースです。(※画像はイメージです)

【食器洗浄乾燥機】 ビルトインタイプの食器洗浄乾燥機を搭載。洗浄から乾燥まで自動で行うため、家事の負担を軽減し、調理スペースも広く使えます。見た目もすっきりとした印象に。(※画像はイメージです)

【玄関タッチキー】 鍵をポケットやかばんに入れたまま、ドアハンドルのボタンを押すだけで施錠・解錠ができるため、とても便利です。

【エコキュート】 高効率なヒートポンプ技術で空気の熱を活用し、電気代を抑えながら安定した給湯を実現。深夜電力の活用でさらに経済的。環境にも家計にもやさしい、これからのスタンダードな給湯システムです。

【浴室換気暖房乾燥機】 浴室換気暖房乾燥機を完備。梅雨や冬など洗濯物が乾きにくい季節や、共働きで外干しが難しいご家庭でも、安心してご利用いただけます。

【省令準耐火構造】 隣家などから火をもらわない。 火災が発生しても一定時間部屋から火を出さない。 部屋から火が出ても延焼を遅らせる。 一般の木造物件よりも、火災保険料率が低くなる。

【サッシ】 全室の窓に、複層ガラスの中空層面に特殊金属加工を施した「Low-E複層ガラス」を採用。遮熱性・断熱性に優れ、冷暖房の効率を高めて快適な室内環境を実現します。(※画像はイメージです)
イベント情報他
| 【現地案内会開催中】※事前にご予約ください。 【開催日時】毎週土曜・日曜・祝日|10:00~17:00 ■ご案内方法:飯田店にご来店のうえ、現地へご案内いたします。 ■ご予約方法:事前にお電話またはお問い合わせフォームよりご連絡ください。ご希望条件に合った物件資料も併せてご提案可能です。資金計画・住宅ローン・税金等のご相談も承っております。 |
物件概要・取扱い店舗
| 所在地 | 長野県伊那市荒井4650番1 |
|---|---|
| 交通 | JR飯田線「伊那市」駅 徒歩約23分 |
| 販売戸数 | 3戸 |
| 総戸数 | 3戸 |
| 価格 | 1号棟:3,680万円(税込)、 2号棟:3,380万円(税込)、3号棟:3,680万円(税込) |
| 最多価格帯 | - |
| 私道負担・道路 | 有(1号地:256.10㎡→1/5、82.60㎡→1/3、2・3号地:256.10㎡→1/5) |
| 諸費用 | 登記費用、火災保険費用、融資手数料等 |
| 間取り | 4LDK |
| 延床面積 | 118.00㎡(35.69坪)~123.38㎡(37.32坪) |
| 土地面積 | 244.75㎡(74.03坪)~293.87㎡(88.89坪) |
| 建ぺい率・容積率 | 60%・200% |
| 完成時期 | 2026年8月上旬完成予定 |
| 入居時期 | 要相談 |
| 土地の権利形態 | 所有権 |
| 構造・工法 | 木造軸組工法/2階建て |
| 用途地域 | 無指定 |
| 地目 | 宅地 |
| その他制限事項 | 景観法、農地法 |
| その他概要 | 水道:公共上下水道、電力:中部電力(オール電化)、建築確認番号:第25NJM-10-01539号他、その他:駐車スペース3台有 |
| お問合せ |
飯田店 0120-926-159 [通話料無料]営業時間9:00~20:00※お問合せの際は「ホームページを見た」とお伝えいただくとスムーズです。 〒395-0804 長野県飯田市鼎名古熊598 [宅建業免許番号]国土交通大臣(5)第6857号(一社)長野県宅地建物取引業協会会員 |
| 売り主・事業主 |
タマホーム株式会社 [建設業許可番号]国土交通大臣許可(特-5)第19013号(般-5)第19013号 [宅建業免許番号]国土交通大臣(5)第6857号 |
●情報更新日:2026.05.21
●次回更新予定日:2026.06.20
※価格は物件の代金総額を表示しており、消費税が課金される場合は税込み価格です。※外観画像・内観画像・CGパース・間取り図に描かれている車両・家具・調度品等は販売価格には含まれません。※完成予想図はいずれも外構・植栽・外観等実際のものと多少異なる場合があります。※販売戸数が複数の物件につきましては、物件の特徴がすべての住戸に該当しない場合があります。※所要時間は、徒歩:道路距離80m/1分間、自転車:道路距離200m/1分間、自動車:道路距離400m/1分間を要するものとして算出した数値となります。

























