タマタウン篠ノ井布施五明
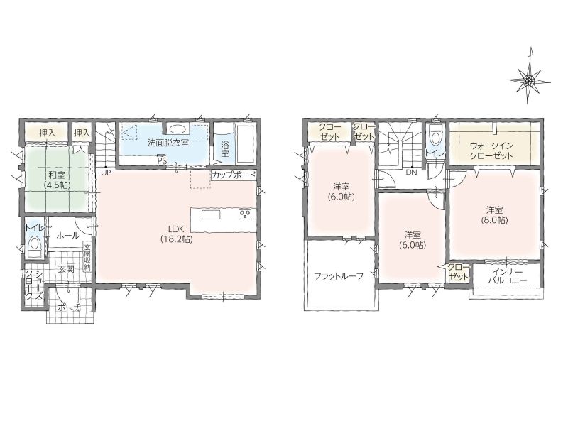
区画プラン・区画図
周辺情報
※地図上に表示される物件の位置は付近住所に所在することを表すものであり、実際の物件所在地とは異なる場合があります。
設備・構造

【キッチン】デザイン性と機能性を両立した大型のペニンシュラキッチンを採用。人造大理石トップなので、見た目スッキリ&お手入れも簡単です。(画像はイメージ)

【カップボード】大容量のカップボードを採用。オーブンレンジ、炊飯器、電気ケトルなど家電もたくさん置けます。(画像はイメージ)

【食器洗浄乾燥機】ビルトイン食器乾燥洗浄機搭載。乾燥まで自動でしてくれるため調理スペースが広がるほか見た目もすっきりします。(画像はイメージ)

【スキップフロア】お子様のスタディコーナーや書斎スペースなどとしても使え、家族とのコミュニケーションの場として活用できます。上部は吹抜のため広々とした空間を演出します。(画像はイメージ)

【浴室乾燥暖房機】梅雨の季節など、外に洗濯物を干せない時も、天気を気にすることなく洗濯物を干すことが可能。冬場の季節は入浴前に暖房をかけておくこともできるので安心して入浴できます。(画像はイメージ)

【電気錠】帰宅時も外出時もボタンを押すだけで施錠、開錠が出来ます。バッグに入れたままでも、リモコンキーを取り出す必要はないため、たくさん買い物をした帰りも楽ちん。(画像はイメージ)

【サッシ】複層ガラスの室外側または室内側の中空層面に特殊金属加工を施した「Low-E複層ガラス」を全室の窓に設置。遮熱・断熱性が高く、冷暖房効率を高めます。(画像はイメージ)

【IHクッキングヒーター】IHクッキングヒーターはガスと比べてお掃除ラクラク。光熱費の節約にも繋がるほか、お子様とのお料理の際も安心です。
イベント情報他
| 現地案内会開催中(事前に必ずお問い合わせください) 【開催日時】毎週土曜・日曜・祝日 【ご案内時間】10:00~17:00 ■ご案内方法: 弊社長野支店までご来店いただきご案内させていただきます。専任スタッフによるご自宅までの送迎や最寄駅までの送迎も可能です。 ■ご案内ご予約手順: 弊社長野支店まで事前にお問い合わせください。ご連絡頂いた物件資料はもちろん、物件探しの条件を教えて頂ければ、併せて条件に合う物件資料をご案内致します。 ■その他各種ご相談もお気軽にご相談ください。 資金計画や住宅ローンのご相談、税金関係もお任せください。 |
物件概要・取扱い店舗
| 所在地 | 長野県長野市篠ノ井布施五明197-8他 |
|---|---|
| 交通 | JR信越本線・篠ノ井線「篠ノ井」駅 徒歩約12分(約900m) |
| 販売戸数 | 2戸 |
| 総戸数 | 5戸 |
| 価格 | 3,480万円(税込)・3,780万円(税込) |
| 最多価格帯 | - |
| 私道負担・道路 | 無・位置指定道路約4.2m |
| 諸費用 | - |
| 間取り | 4LDK |
| 延床面積 | 110.54㎡(33.43坪) |
| 土地面積 | 138.36㎡(41.85坪)・152.12㎡(46.01坪) |
| 建ぺい率・容積率 | 50%・80% |
| 完成時期 | 2025年4月 |
| 入居時期 | 即引渡し可(諸手続き完了後) |
| 土地の権利形態 | 所有権 |
| 構造・工法 | 木造軸組工法 |
| 用途地域 | 第一種低層住居専用地域 |
| 地目 | 宅地 |
| その他制限事項 | - |
| その他概要 | 水道:公営上下水道、電気:中部電力、ガス:オール電化のため無、建築確認番号:第24NJK-10-00887号 他 |
| お問合せ |
長野支店 0120-925-294 [通話料無料]営業時間9:00~20:00(定休日:毎週水曜日)※お問合せの際は「ホームページを見て」とお伝えいただくとスムーズです。 〒388-8004 長野県長野市篠ノ井会902-1 [宅建業免許番号]国土交通大臣(5)第6857号(公社)長野県宅地建物取引業協会会員(公社)首都圏不動産公正取引協議会加盟 |
| 売り主・事業主 |
タマホーム株式会社 [建設業許可番号]国土交通大臣許可(特-5)第19013号(般-5)第19013号 [宅建業免許番号]国土交通大臣(5)第6857号 |
●情報更新日:2025.09.18
●次回更新予定日:2025.12.19
※価格は物件の代金総額を表示しており、消費税が課金される場合は税込み価格です。※外観画像・内観画像・CGパース・間取り図に描かれている車両・家具・調度品等は販売価格には含まれません。※完成予想図はいずれも外構・植栽・外観等実際のものと多少異なる場合があります。※販売戸数が複数の物件につきましては、物件の特徴がすべての住戸に該当しない場合があります。※所要時間は、徒歩:道路距離80m/1分間、自転車:道路距離250m/1分間、自動車:道路距離666m/1分間を要するものとして算出した数値となります。































