タマタウン豊科鳥羽
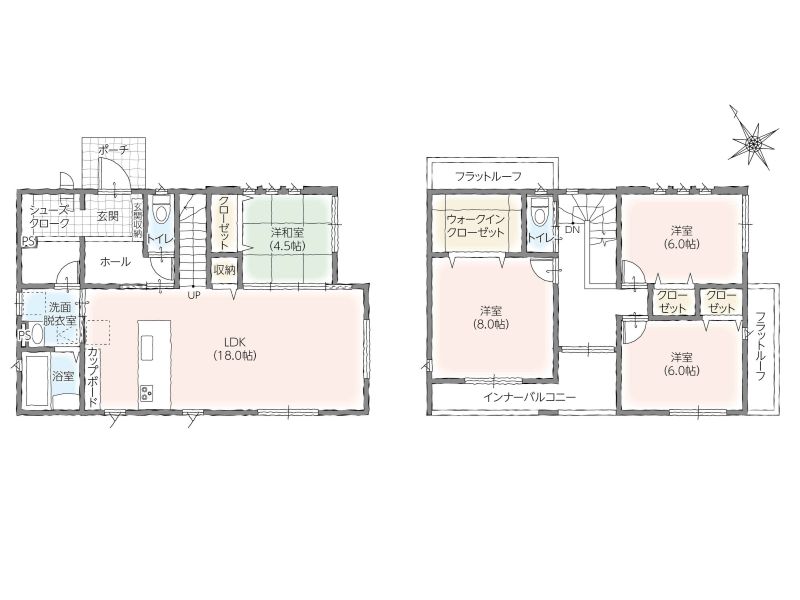
区画プラン・区画図
周辺情報
※地図上に表示される物件の位置は付近住所に所在することを表すものであり、実際の物件所在地とは異なる場合があります。
設備・構造

【リビング】

【キッチン】

【和室】

【玄関】

【ウォークインクローゼット】

【トイレ】

【洗面所】

【浴室】

【タッチキー】帰宅時も外出時もボタンを押すだけで施錠、開錠が出来ます。バッグに入れたままでも、リモコンキーを取り出す必要はないため、たくさん買い物をした帰りもボタンを押すだけ。

【ペニンシュラキッチン】対面のカウンターとしても使える広い天板は、お料理の際にもゆったりと使えるキッチンです。リビングやダイニングを見渡せるので便利です(画像はイメージ)。

【食器洗浄乾燥機】ビルトイン食器乾燥洗浄機搭載。乾燥まで自動でしてくれるため調理スペースが広がるほか見た目もすっきりします(画像はイメージ)。

【スキップフロア】ファミリーライブラリーとしても使用できるスキップフロアは家族みんなが自由に使える図書館のような場所。読書や仕事、お子様と一緒に勉強するなど様々な使い方があります(画像はイメージ)。

【24時間換気システム】室内の汚れた空気を排出し、新鮮な空気だけ取り込み、排出する空気の温度を利用し、取り込む空気の温度を適温にコントロールするので、冷暖房のランニングコストが削減できます。

【ベタ基礎】コンクリートは、高耐久性と強度を確保、鉄筋は徹底管理した工場で溶接・加工されたユニット鉄筋を採用。建物をしっかり支え地震の揺れにも耐える強固な家づくりを実現しています。
.jpg)
【省令準耐火構造】火災に強い不燃材料に認定された外壁材を採用。万が一、隣の家で火災が発生した際でも、もらい火や火の粉の影響を受けにくくします。

【断熱材】壁と天井にグラスウール、床にポリスチレンフォームの断熱材を施工。寒冷地に対応した高い断熱性と気密性を確保。外気温の影響を受けにくいので冬は「暖かく」、夏は「涼しい」家を実現します。
その他の仕様
長期優良住宅/オール電化
イベント情報他
| 【現地案内・完成現場見学可能です!】 ・ご希望の方はお手数ですが、事前のご連絡をお願いいたします。 【お問い合わせ先】タマホーム 松本支店~何でもお気軽にご相談ください~ ●「今の家賃と比べてどのくらい変わるの?」 ●「頭金が無くても買えるの?」 ●「金利はどのくらい?どこの金融機関を利用するのがいいの?」 ●「分譲マンションからの住替えをしたいんだけど」平日および夜間のご案内もできます!! お気軽にお問い合わせください。 |
物件概要・取扱い店舗
| 所在地 | 長野県安曇野市豊科下鳥羽1138-17他 |
|---|---|
| 交通 | JR大糸線「南豊科」駅 徒歩約18分(約1,400m) |
| 販売戸数 | 3戸 |
| 総戸数 | 4戸 |
| 価格 | 3,380万円(税込)~3,980万円(税込) |
| 最多価格帯 | - |
| 私道負担・道路 | 無・北側4.0m幅(市道) |
| 諸費用 | - |
| 間取り | 4LDK |
| 延床面積 | 112.61㎡(34.06坪)~114.26㎡(34.56坪) |
| 土地面積 | 210.56㎡(63.69坪)~236.77㎡(71.62坪) |
| 建ぺい率・容積率 | 60%・200% |
| 完成時期 | 2025年11月中旬頃 |
| 入居時期 | 要相談 |
| 土地の権利形態 | 所有権 |
| 構造・工法 | 木造2階建(軸組工法) |
| 用途地域 | 第一種中高層住居専用地域 |
| 地目 | 宅地 |
| その他制限事項 | 法22条地域 |
| その他概要 | 水道:公営上下水道、電力:中部電力、ガス:オール電化の為、なし、建築確認番号:第25NJM-10-00237号他 |
| お問合せ |
松本支店 0120-925-293 [通話料無料]営業時間9:00~20:00(定休日:毎週水曜日および毎月第2、第3火曜日)※お問合せの際は「ホームページを見て」とお伝えいただくとスムーズです。 〒390-0835 長野県松本市高宮東198番11 【宅建業免許番号】国土交通大臣(5)第6857号(公社)長野県宅地建物取引業協会会員(公社)首都圏不動産公正取引協議会加盟 |
| 売り主・事業主 |
タマホーム株式会社 [建設業許可番号]国土交通大臣許可(特-5)第19013号(般-5)第19013号 [宅建業免許番号]国土交通大臣(5)第6857号 |
●情報更新日:2025.11.13
●次回更新予定日:2025.12.19
※価格は物件の代金総額を表示しており、消費税が課金される場合は税込み価格です。※外観画像・内観画像・CGパース・間取り図に描かれている車両・家具・調度品等は販売価格には含まれません。※完成予想図はいずれも外構・植栽・外観等実際のものと多少異なる場合があります。※販売戸数が複数の物件につきましては、物件の特徴がすべての住戸に該当しない場合があります。※所要時間は、徒歩:道路距離80m/1分間、自転車:道路距離250m/1分間、自動車:道路距離666m/1分間を要するものとして算出した数値となります。































