タマタウン加茂
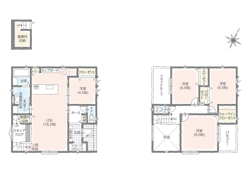
区画プラン・区画図
周辺情報
-
ショッピングコメリ菊川店 徒歩約6分(約450m)
-
保育園あいキッズランド 徒歩約14分(約1,120m)
※地図上に表示される物件の位置は付近住所に所在することを表すものであり、実際の物件所在地とは異なる場合があります。
設備・構造

外壁材と構造躯体の間に外気が流れる通気層をつくることで、湿気を外部に放出。壁内の通気層は屋根裏まで通っており、湿気を少なくすることで、構造体や断熱材を腐食やカビから守り、建物の耐久性を向上させます。

1階と2階の床には、剛床工法を採用。構造用合板を土台や梁に直接留めつけて、床全体を一体化。地震の横揺れにも効果を発揮します。

しっかりと軸組を固定する通し柱接合金物。通柱の削り取り部分を最小限に抑えることで柱の断面欠損が小さくなり、梁仕口のせん断面強度が大きくなります。

複層ガラスの室外側または室内側の中空層面に特殊金属加工を施した「Low-E複層ガラス」を全室の窓に設置。遮熱・断熱性が高く、紫外線や窓からの熱気を大幅にカットし、冷暖房効率を高めます。

デザイン性、耐久性を兼ね備えた外壁材。コーティング技術の進歩により、壁についた汚れを雨で洗い流すセルフクリーニング効果で、おしゃれな外壁を美しく長持ちさせます。

認定基準の「等級2以上」に対し、「等級3」を基本としています。建築基準法で定める1.5倍の地震力でも倒壊・崩壊しないレベルです(プランや仕様によっては耐震等級が変更になる場合があります)。

長期優良住宅に求められる4つの性能基準について、当分譲戸建商品は、標準仕様において、長期優良住宅の認定条件全4項目で最高等級を確保しています(住宅性能表示制度での等級を適用)。
イベント情報他
現場見学・資料請求をご希望のお客様 【ご案内可能日時】毎週土曜・日曜 【ご案内可能時間】10:00~17:00 ※弊社までご連絡を事前に頂けるとよりスムーズにご対応可能です。また平日のご案内をご希望のお客様につきましてもご連絡頂ければ専属スタッフがご対応いたします。
物件概要・取扱い店舗
| 所在地 | 静岡県菊川市加茂645番7、他 |
|---|---|
| 交通 | JR東海道本線「菊川」駅 徒歩約29分 |
| 販売戸数 | 2戸 |
| 総戸数 | 5戸 |
| 価格 | 3,480万円(税込)・3,580万円(税込) |
| 最多価格帯 | - |
| 私道負担・道路 | 無・東側約6m、西側約6m |
| 諸費用 | - |
| 間取り | 4LDK |
| 延床面積 | 113.65㎡(34.37坪)・114.68㎡(34.69坪) |
| 土地面積 | 189.61㎡(57.35坪)・203.06㎡(61.42坪) |
| 建ぺい率・容積率 | 60%・200% |
| 完成時期 | 2025年8月 |
| 入居時期 | 即入居 |
| 土地の権利形態 | 所有権 |
| 構造・工法 | 木造2階建て |
| 用途地域 | 無指定 |
| 地目 | 宅地 |
| その他制限事項 | - |
| その他概要 | 水道:公営上下水道、電力:中部電力、ガス:ー、建築確認番号:第2024確認建築静建住ま10406号、第2024確認建築静建住ま10407号 |
| お問合せ |
袋井店 0120-923-640 [通話料無料]営業時間9:00~20:00(定休日:水曜日)※お問合せの際は「ホームページを見て」とお伝えいただくとスムーズです。 〒437-0066 静岡県袋井市山科3540-2 [宅建業免許番号]国土交通大臣(5)第6857号 東海不動産公正取引協議会加盟 (公社)静岡県宅地建物取引業協会会員 |
| 売り主・事業主 |
タマホーム株式会社 [建設業許可番号]国土交通大臣許可(特-5)第19013号(般-5)第19013号 [宅建業免許番号]国土交通大臣(5)第6857号 |
●情報更新日:2025.09.29
●次回更新予定日:2025.12.19
※価格は物件の代金総額を表示しており、消費税が課金される場合は税込み価格です。※外観画像・内観画像・CGパース・間取り図に描かれている車両・家具・調度品等は販売価格には含まれません。※完成予想図はいずれも外構・植栽・外観等実際のものと多少異なる場合があります。※販売戸数が複数の物件につきましては、物件の特徴がすべての住戸に該当しない場合があります。※所要時間は、徒歩:道路距離80m/1分間、自転車:道路距離250m/1分間、自動車:道路距離666m/1分間を要するものとして算出した数値となります。































