タマタウン篠原
区画プラン・区画図
設備・構造
イベント情報他
| 現場見学または資料請求をご希望のお客様 【ご案内可能日時】毎週土日・平日 【ご案内可能時間】10:00~18:00 ※ご希望の日時を事前にご連絡いただけますとスムーズに対応可能です。 また、平日のご案内をご希望のお客様につきましてもご連絡いただければ専属スタッフがご対応致します。 |
物件概要・取扱い店舗
| 所在地 | 山梨県甲斐市篠原2397番 |
|---|---|
| 交通 | JR中央本線「竜王」駅 徒歩約17分(約1,300m) |
| 販売戸数 | 3戸 |
| 総戸数 | 5戸 |
| 価格 | 3,380万円(税込)~3,480万円(税込) |
| 最多価格帯 | - |
| 私道負担・道路 | 無・南側市道約6m幅・北側約6m幅 |
| 諸費用 | - |
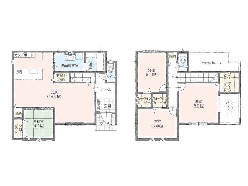
| 間取り | 4LDK |
| 延床面積 | 111.46㎡(33.71坪)~121.31㎡(36.31坪) |
| 土地面積 | 217.14㎡(65.68坪)~239.43㎡(72.42坪) |
| 建ぺい率・容積率 | 50%・80% |
| 完成時期 | 2026年1月予定 |
| 入居時期 | 2026年2月予定 |
| 土地の権利形態 | 所有権 |
| 構造・工法 | 木造2階建て |
| 用途地域 | 無指定地域 |
| 地目 | 宅地 |
| その他制限事項 | - |
| その他概要 | 水道:公共上水道・公共下水道、電力:東京電力、ガス:プロパンガス、建築確認番号:第2025確認建築静建住ま06285号他 |
| お問合せ |
甲府支店 0120-923-780 [通話料無料]営業時間9:00~20:00※お問合せの際は「ホームページを見て」とお伝えいただくとスムーズです。 〒400-0814 山梨県甲府市上阿原町1086番地 [宅建業免許番号]国土交通大臣(5)第6857号 (公社)山梨県宅地建物取引業協会会員 |
| 売り主・事業主 |
タマホーム株式会社 [建設業許可番号]国土交通大臣許可(特-5)第19013号(般-5)第19013号 [宅建業免許番号]国土交通大臣(5)第6857号 |
●情報更新日:2025.12.09
●次回更新予定日:2026.01.16
山梨県の物件一覧
※価格は物件の代金総額を表示しており、消費税が課金される場合は税込み価格です。※外観画像・内観画像・CGパース・間取り図に描かれている車両・家具・調度品等は販売価格には含まれません。※完成予想図はいずれも外構・植栽・外観等実際のものと多少異なる場合があります。※販売戸数が複数の物件につきましては、物件の特徴がすべての住戸に該当しない場合があります。※所要時間は、徒歩:道路距離80m/1分間、自転車:道路距離250m/1分間、自動車:道路距離666m/1分間を要するものとして算出した数値となります。






















