タマタウン小古曽
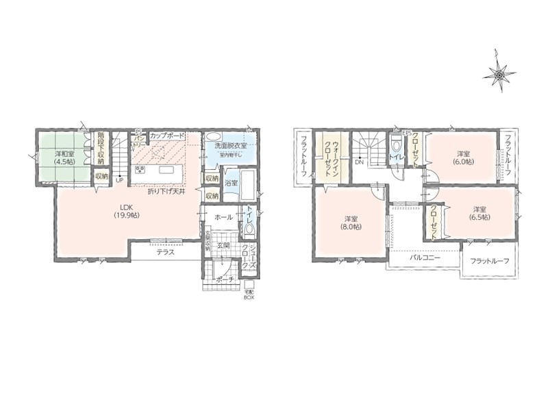
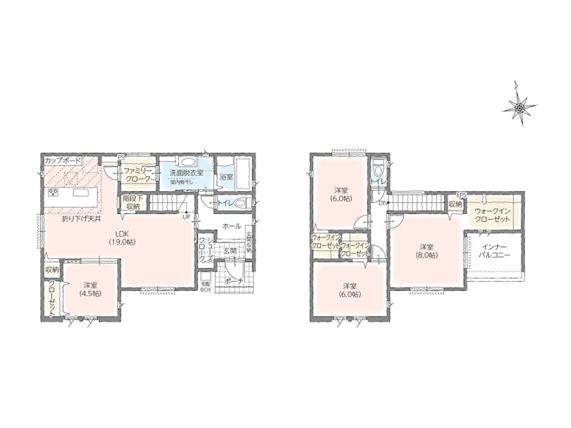
区画プラン・区画図
周辺情報
-
公園川尻公園まで約600m(徒歩約8分)
-
交通近鉄名古屋線「塩浜」駅まで約2,400m(徒歩約30分)
※地図上に表示される物件の位置は付近住所に所在することを表すものであり、実際の物件所在地とは異なる場合があります。
設備・構造

シロアリを寄せ付けにくい、耐久性に優れたヒノキ土台を採用。また、柱には高品質の集成材を採用。集成材は安定した強度を持ち、耐震性、耐久性に高い強い家を生み出します。

外壁材と構造躯体の間に外気が流れる通気層があり、湿気を外部に放出。壁内の通気層は屋根裏まで通っており、結露や湿気を少なくすることで、構造体や断熱材を腐食やカビから守り、建物の耐久性を向上させます。

1階と2階の床には、剛床工法を採用。構造用合板を土台や梁に直接留めつけて、床全体を一体化。地震の横揺れにも効果を発揮します。

複層ガラスの室外側の中空層面に特殊金属加工を施した「Low-E複層ガラス」を全室の窓に設置。さらに樹脂サッシで遮熱・断熱性が高く、紫外線や窓からの熱気を大幅にカットし、冷暖房効率を高めます。

スウェーデン式サウンディング試験機による地盤調査を実施。強い家づくりの基本は、建物をしっかりと支える地盤です。当分譲地は、着工前に地盤を調査しています。

ベタ基礎を標準採用。コンクリートは、高耐久性と強度を確保。鉄筋は徹底管理した工場で溶接・加工されたユニット鉄筋を採用。建物をしっかり支え、地震の揺れにも耐える強固な家づくりを実現しています。

外壁には、火に強い不燃材に認定された外壁材を標準仕様として採用。万一、隣家で火災が発生した際、もらい火等の影響を受けにくく、ご家族と住まいしっかりと守ります。
イベント情報他
| 完成現場案内実施中(※事前にお問い合わせください) 【開催日】 毎日開催/定休日:水曜日 【ご案内時間】 10:00~20:00 ■ご案内方法 建物完成までは四日市営業所(0120-923-430)にて物件案内を行います。 ■ご案内予約 弊社まで事前にご連絡をいただけると幸いです。 ■その他、各種ご相談もお気軽にご相談ください。安心できるファイナンシャルプランナーによる資金計画や住宅ローンのご相談もお任せください。 |
物件概要・取扱い店舗
| 所在地 | 三重県四日市市大治田三丁目595番1他 |
|---|---|
| 交通 | あすなろう鉄道「小古曽」駅 徒歩約15分 |
| 販売戸数 | 1戸 |
| 総戸数 | 4戸 |
| 価格 | 3,280万円(税込) |
| 最多価格帯 | - |
| 私道負担・道路 | 無・南側公道約6.00m幅 |
| 諸費用 | 契約印紙代、火災保険、登記費用、住宅ローン手数料等 |
| 間取り | 4LDK |
| 延床面積 | 114.48㎡(34.63坪) |
| 土地面積 | 169.39㎡(51.24坪) |
| 建ぺい率・容積率 | 60%・200% |
| 完成時期 | 2025年9月予定 |
| 入居時期 | 2025年10月予定 |
| 土地の権利形態 | 所有権 |
| 構造・工法 | 木造軸組工法2階建て |
| 用途地域 | 準工業地域 |
| 地目 | 宅地 |
| その他制限事項 | - |
| その他概要 | 水道:公営上水道・浄化槽、電力:中部電力、ガス:ガス無、建築確認番号:確認サービス第KS125-0420-50817 号 |
| お問合せ |
四日市営業所 0120-923-430 [通話料無料]営業時間9:00~20:00(定休日:毎週水曜日)※お問合せの際は「ホームページを見て」とお伝えいただくとスムーズです。 〒512-0911 三重県四日市市生桑町315-1 [宅建事業免許番号]国土交通大臣(5)第6857号(公社)三重県宅地建物取引業協会会員 東海不動産公正取引協議会加盟 |
| 売り主・事業主 |
タマホーム株式会社 [建設業許可番号]国土交通大臣許可(特-5)第19013号(般-5)第19013号 [宅建業免許番号]国土交通大臣(5)第6857号 |
●情報更新日:2025.09.30
●次回更新予定日:2025.12.19
※価格は物件の代金総額を表示しており、消費税が課金される場合は税込み価格です。※外観画像・内観画像・CGパース・間取り図に描かれている車両・家具・調度品等は販売価格には含まれません。※完成予想図はいずれも外構・植栽・外観等実際のものと多少異なる場合があります。※販売戸数が複数の物件につきましては、物件の特徴がすべての住戸に該当しない場合があります。※所要時間は、徒歩:道路距離80m/1分間、自転車:道路距離250m/1分間、自動車:道路距離666m/1分間を要するものとして算出した数値となります。





























